WiseBIM AI for Autodesk® Revit®

WiseBIM AI for Autodesk® Revit®

Digitally signed app

A, M, Versione di prova gratuita valida 30 giorni
Sistema operativo:
Lingua:

Descrizione

Save time and money!

WiseBIM revolutionizes the conversion of 2D plans into Autodesk® Revit® elements.
Harnessing the power of Artificial Intelligence, it offers unparalleled speed and precision!

Just import your existing architectural 2D plan and, within seconds, our advanced automatic detection by AI will swiftly create a detailed representation, encompassing walls, windows, doors, and slabs.

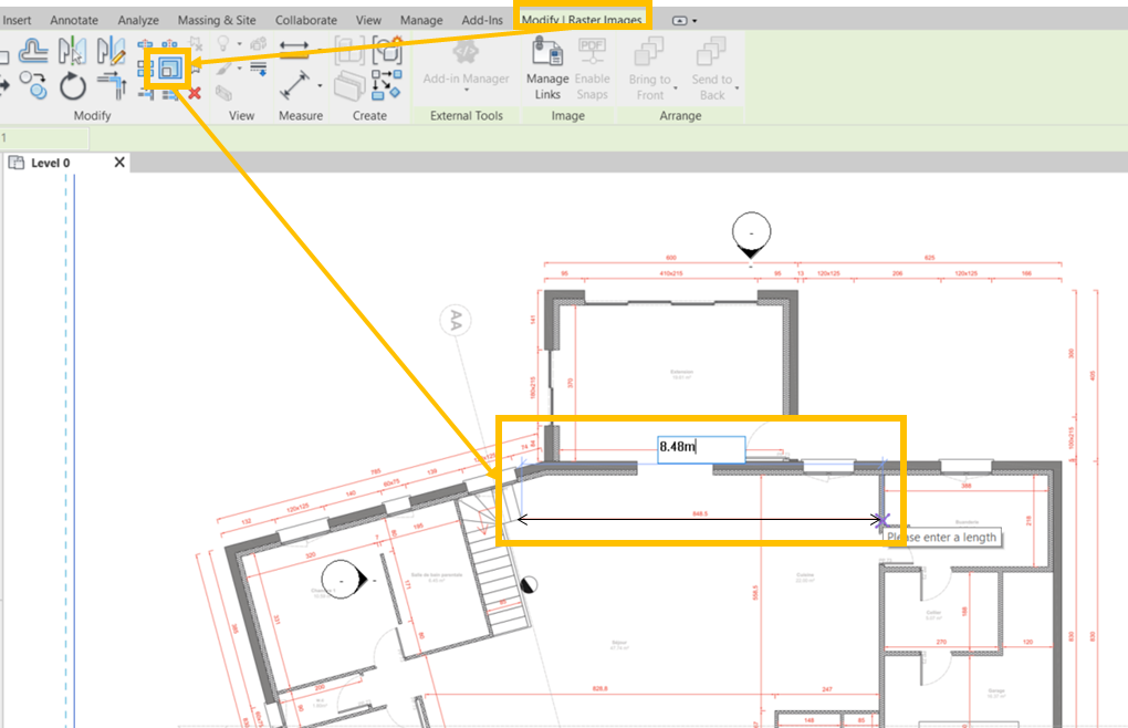
Only a few steps are needed:

  1. In a Revit project, import an architectural 2D plan of your level from DWG, DXF, PDF, JPEG, TIFF, or PNG file
  2. Set the scale of the image
  3. Select the image and click the WiseBIM detection button in the Add-Ins menu
  4. Set a few parameters (such as height, and families) and run the automatic detection
  5. Seconds later, the Revit model is created for each element.

 

Ideal for:

  • engineering offices
  • architects
  • construction companies
  • owners, facility and property managers

Informazioni sulla versione

Versione 1.4.0, 24/02/2026
Revision - improve compatibility with family - improve detection of orthogonal walls - add user token for company - fix polygonal crop view


Schermate e video


Recensioni dei clienti

14 recensioni
Richiedi assistenza tecnica
  • Nebojša Jeremić
    Nebojsa Jeremic | marzo 12, 2026 Download verificato (Guida rapida)

    Plug in is great, every version is better and better, it can be helpful a lot.


  • Great potential
    Silvia Fernandes | febbraio 02, 2026

     I find the application extremely useful and with great potential. I am still in a testing phase, but my overall experience so far has been very positive.


  • Okay
    Yolanda Bock de Barillas | novembre 04, 2025

    Das Tool ist bei alten Bestandsbauten, ohne gerade Wände, rechten Winkeln, etc. gut einsetzbar.

    Allerdings sind Gebäude, die eine Regelmäßigkeit haben und im Großen und Ganzen rechtwinklig aufgebaut sind, schneller neu selbst modelliert.

    Mit dem aktuellen Tool muss man sehr viel nacharbeiten und reparieren, da die Winkel nicht richtig erkannt werden und auch die Wandstärken nicht korrekt erkannt werden.

    Auch dass das Tool selbstständig neue Familien erstellt und man nicht die Option hat die richtigen, weil durch das Tool falsch als richtig interpretiert, Familien auszuwählen, ist nicht gut, da hier jedes Mal aufgeräumt werden muss.


  • Game-Changer!!
    Kevin Junior Pearson | agosto 05, 2025 Download verificato (Guida rapida)

    WiseBIM AI is a game-changer. It effortlessly converts 2D plans into BIM models, saving time and improving accuracy. The interface is user-friendly, and its automation features are incredibly helpful for early-stage design and quantity takeoff. Highly recommended for anyone working in architecture or construction.


  • Highly recommended!
    GHASEM ARIYANI | luglio 03, 2025 Download verificato (Guida rapida)

    I’ve fully tested WiseBIM AI for Revit, and I’m impressed!

    It saves a huge amount of time by converting 2D plans into 3D Revit elements with great accuracy.

    The automatic detection for walls, openings, and slabs works smoothly and is very handy.

    Perfect tool for architects, BIM modelers, and engineers who want to streamline their modeling workflows.

    Looking forward to more updates!

    Highly recommended!

    Lesly Vallecillo | luglio 18, 2025

    Thanks for sharing your experience! If you ever feel like exploring other options, I’d love to suggest Empoli here in auto desk— it works with both SketchUp and Revit, and also helps speed up 2D-to-3D modeling with smart detection for walls, openings, and more.


  • Amazing time saving product
    brian holliday | maggio 19, 2025 Download verificato (Guida rapida)

    I work for developers who are constantly adding new plans. Some plans are raster images. This plugin gets me 90% there.  Take the time to set it up correctly, and you'll save hours. Customer service is #1.

    Brian Holliday 5/19/25 


  • :(
    Semi Gammoudi | aprile 28, 2025

    I've tried it but most of our walls are either wrong or obliquely modelled.
    The tool does not seprate architectural walls into core layers as well, just one single thickness for a wall consisting of multiple layers.

    Tristan GARCIA (Autore) | maggio 06, 2025

    Thank you for your feedback. As we discussed together after this review, it's unfortunate that your opinion is based on a single plan with architectural inconsistencies. Currently, the add-in generates a single wall for all layers, not one wall per layer as you require. Had you contacted us directly, we could have better explained how the add-in works.


  • 參數導向建模流程體驗佳
    育倫 劉 | aprile 23, 2025

    I'm a Revit user from Taiwan, currently testing WiseBIM AI on residential projects.
    The interface is intuitive, and the detection process is fast and smooth — walls, doors, and windows are recognized effectively, which significantly speeds up modeling workflows for small to mid-scale designs.

    While the auto-generated families still require some consolidation (especially wall types and thicknesses), the overall parameter logic is clear and well-structured. I look forward to future support for structural projects, like steel-frame factory buildings.

     

    As a Traditional Chinese user, I truly hope to see multilingual support in future versions, which would greatly help expand adoption in East Asia.
    This is a promising tool with solid fundamentals — glad to be part of the early testing community.

    Tristan GARCIA (Autore) | aprile 29, 2025

    Thank you so much for taking the time to share your feedback on our add-in! In terms of multilingual support, including traditional Chinese, we fully understand its importance for wider adoption in East Asia. At present, English and French are supported. That said, your feedback helps us prioritise future developments, and we will continue to assess demand as our user base grows.


  • Does Exactly What It Says
    Flavius Budisan | marzo 27, 2025

    This AI tool is groundbreaking for the firms that use existing backgrounds to start a project. However, its not intuitive as I thought; the fact that it creates its own types of the families you select becomes difficult when you're constantly cleaning up and purging duplicated families; Same thing happens with the walls, still need to experiment to see if I select that all wall widths should be only one wall type. They also need to solve accuracy; sure, you need to scale the pdf and/or dwg; most of our backgrounds are scaled correctly. The walls are not perfectly aligned with the dwg background; they are slightly skewed which is infuriating since the time i would spend creating them via the pick lines tool is the same or even more time spent correcting the walls created by this tool. I think the idea is there, this tool just needs to be further polished to work correctly. right now, its not there. Hopefully, the devs push it further and thats when the firm I work for will pay for it. 

    Tristan GARCIA (Autore) | aprile 01, 2025

    Thank you very much, Flavius, for reviewing our add-in. Please note that you can use your own project with your own families. Additionally, the creation of multiple families can be significantly limited in the settings by defining a greater tolerance (threshold), which forces the tool to generate walls with uniform thickness. We are constantly improving our tool—stay tuned! The next version (1.3.0) will bring significantly greater efficiency to your workflow.


  • BLUFFANT !!
    Bernard PRECI | febbraio 05, 2025 Download verificato (Guida rapida)

    Découvert par hasart en m'informant sur REVIT et IA et je regarde la vidéo de présentation alors j'ai testé et c'est très puissant et très rapide !!

    Que ce soit avec un DWG, PDF ou même un JPEG !

    Cela permet de se concentrrer sur notre coeur de métier, la conception. Bravo aux développeurs !!

    Bernard PRECI

    DESSINATEUR-PROJETEUR-STRUCTURE BAT. et GENIE CIVIL chez INGEROP

    Tristan GARCIA (Autore) | febbraio 11, 2025

    Merci Bernard for your great feedback! We truly appreciate your support, and we'll continue improving to make your experience even better!


  • Works well
    Yuan Yao | gennaio 21, 2025

    I am seraching for this kind of tool for lang time to covert 2d DWG to Revit Modell. It works 70-80%, for normal buildings. 

    Please remeber to turn off the not necessary laies of DWG for the dection, it will works better.

    Tristan GARCIA (Autore) | gennaio 22, 2025

    Thank you Yuan for this feedback and tip. Indeed, for DWG drawings, you can limit the number of layers for more effective detection.


  • 20x time savings
    Mark Clarkson | marzo 28, 2024

    A very impressive tool. We found we could speed up our process by 20x from mannaully modelling over the DWGs. 

    Tristan GARCIA (Autore) | gennaio 22, 2025

    Thank you Mark, I'm delighted that you're happy with this add-in.


  • Rapide, efficace et impressionnant !
    Karim ff | marzo 20, 2024

    Ce plug-in est un must have pour tout modeleur qui souhaite gagner du temps dans certaines tâches fastidieuses de modélisation. Il permet de se concentrer sur l'essentiel et de modéliser rapidement la plupart des bâtiments depuis les plans 2D. Je le recommande !!

    Tristan GARCIA (Autore) | gennaio 22, 2025

    Merci beaucoup Karim!


  • Excellent !
    Ruben JOHAN | marzo 11, 2024

    Le plug-in WiseBIM se révèle être une extension d'une utilité remarquable. Il se distingue par sa capacité à réduire drastiquement le temps nécessaire à la modélisation à partir de plans 2D, en éliminant les tâches fastidieuses et répétitives. Cette optimisation du processus permet non seulement d'accroître la productivité, mais aussi de libérer du temps.

    Tristan GARCIA (Autore) | marzo 12, 2024

    Merci Ruben pour ce commentaire, toute l'équipe de WiseBIM vous remercie.

Vai all'inizio