Department area calculator - 2022

Department area calculator - 2022

Бесплатное
ОС:
Язык:

Описание

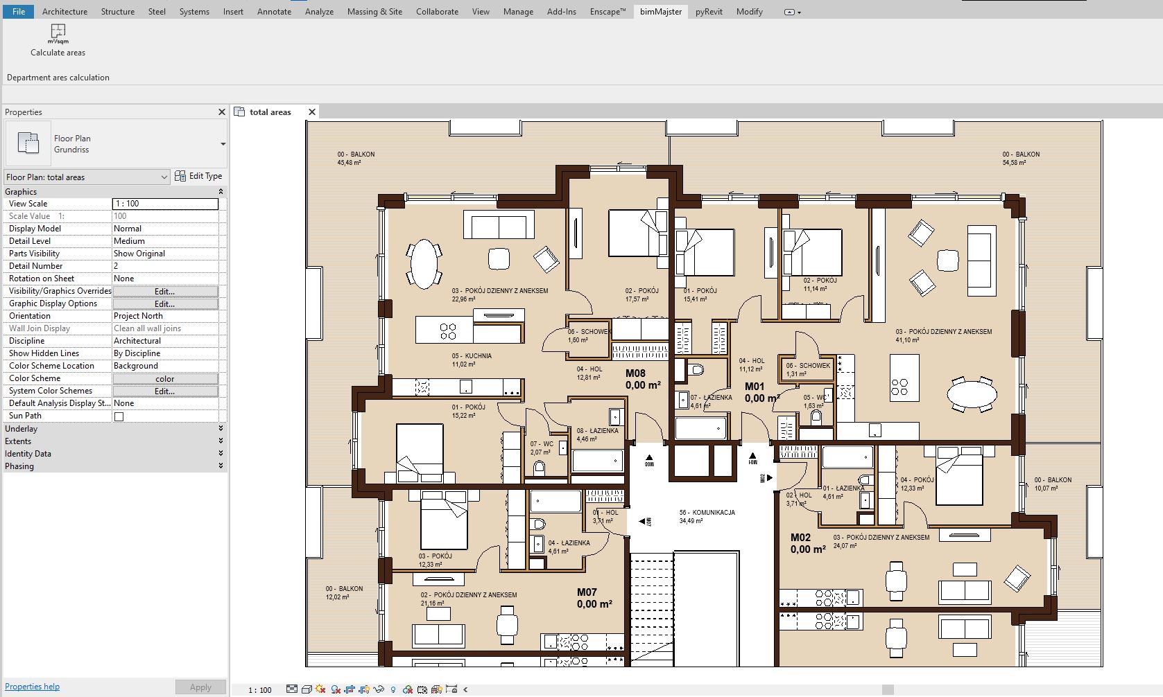
This app allows the summarizing of areas for rooms that belong to one department. The summed area is then written back to rooms into the desired parameter. Because of this, it is possible to show in plans the areas of departments with standard Autodesk® Revit® tags. Values are updated when the script is restarted. Rooms are grouped by the same values of the desired parameter.

In case you are interested in extending or customizing this workflow please contact us using our customer support email address.

Сведения об этой версии

Версия 1.0.1, 20.05.2022
Initial release for Autodesk® Revit® 2022


Скриншоты и видео


Рецензии клиентов

0 рецензия
Техническая поддержка
Наверх