
Light Distribution
Win32 and 64, EnglishGeneral Usage Instructions
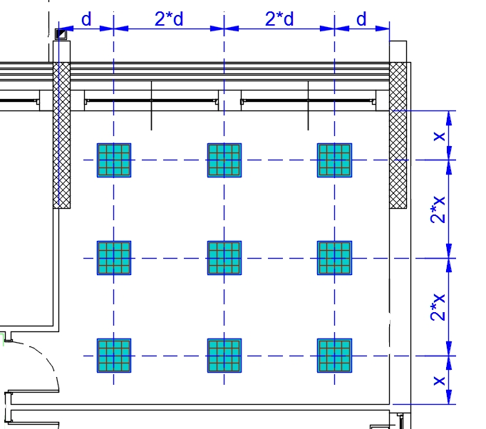
type LD or select the icon in the ribbon. When the dialog box appears, set the number of lamps (blocks) to distribute and where to distribute them: in a rectangular area or along a path.
Commands
Ribbon/Toolbar Icon | Command | Command Description |
---|---|---|
![]() |
LD |
start program and dispaly dialog box to set parameters |
Installation/Uninstallation
The installer that was run when you downloaded this app/plug-in from the Autodesk App Store will begin installing the app/plug-in. OR, simply double-click the downloaded installer to install the app/plug-in. You may need to restart the Autodesk product to activate the app/plug-in. To uninstall this plug-in, exit the Autodesk product, if it is running, simply run the installer again and select the "Uninstall" button. Alternatively, click Control Panel> Programs> Programs and Features (Windows 7/8.1/10/11) and uninstall as you would any other application from your system.
Additional Information
Known Issues
\
Contact
Author/Company Information
Support Information
www.domenicoieva.com/light-distribution.htm
for more info send an email to: info@domenicoieva.com
Version History
Version Number | Version Description |
---|---|
1.0.0 |
Add 2026 support (no change in version number) |