
Kobi Toolkit for AutoCAD®
Description
Kobi Toolkit for AutoCAD® is the ultimate solution for enhancing your Autodesk® AutoCAD® workflow. Whether you're a professional architect, engineer, or designer, the Kobi Toolkit is designed to simplify your tasks and increase your productivity. With over 20 features, including a Selection Filter, Spreadsheet Properties, Block/Hatch/Linetype Legend, and many more tools, Kobi Toolkit makes it even easier to work with .dwg drawings. Kobi Toolkit For AutoCAD® offers various annotation tools that allow managers to automatically label elevation and slope dimensions.
It assists supervisors with the preparation of drawings by using layout tools and creating design sheets accordingly. The system helps convert two-dimensional polylines into three-dimensional polylines and evaluates their elevation and grade scale.
Some of the most popular tools included in the Kobi Toolkit for AutoCAD® are:
- Spreadsheet Properties - A powerful tool to edit entity properties in an Excel-like spreadsheet. Take advantage of Excel functionalities to manipulate properties and push changes back into the drawing.
- Extended Polyline - With the Extended Polyline command, you can now create a 3D Polyline by continuously defining its elevation, grade, or arc.
- Elevation Editor - Review and edit the elevations or grades of different vertices of your 3D Polyline.
- 3D Offset - Command similar to AutoCAD offset with the option to define vertical offset. Works also on 3D Polylines.
- Annotate Tools - The annotation tools allow you to label elevation and slope, as well as improve visibility using Polyline Wipeout. With just a few clicks, you can also create various types of legends, including Block Legend, Hatch Legend, and Linetype Legend.
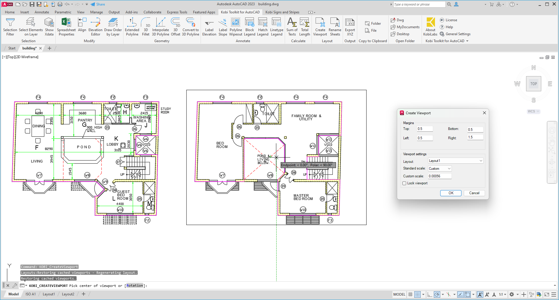
- Layout Tools - Use Create Viewport to define paper size, margins, and scale. The appropriate rectangle will be presented in model space, enabling you to interactively position it by defining location and rotation. With the tool Rename Sheets, you can rename multiple sheets at once. You can also use it to change layout names.
Note: This app uses a custom installer (and not the standard App Store installer).
Trial Description
The free trial version is valid for 15 days.