Trial Trench

Trial Trench

평가판
OS:
언어:

설명

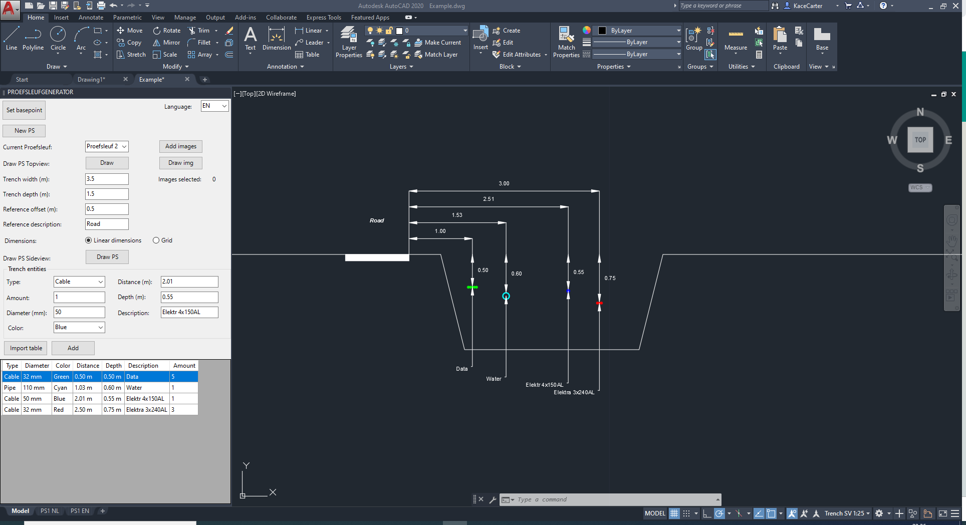
When deciding where to lay new pipes & cables, trial trenches are dug to determine the exact location of the existing pipes & cables. Recording these has always been intensive work with pen and paper and translating that to a decent Report.

체험판 설명

This app is fully functional and free for the first 30 days.

After this period a paid license is required. Please contact info@pro-cad.nl for pricing or bulk purchasing.

This process can take up to 3 business days.

이 버전 정보

버전 1.2, 2021-09-13
Added the ability to save all the data in the drawing. Saving is triggered when a draw button is pressed and loading occurs when you open this tool. Added the type Triplex for medium-voltage connections. You can now add trench cables and pipes by selecting blocks (GPS points). Reference offset is selectable.


스크린샷 및 비디오


고객 리뷰

0 리뷰
기술 도움말 보기
맨 위로 이동