Trial Trench
Próbaidőszak
OPERÁCIÓS RENDSZER:
Nyelv:

Leírás

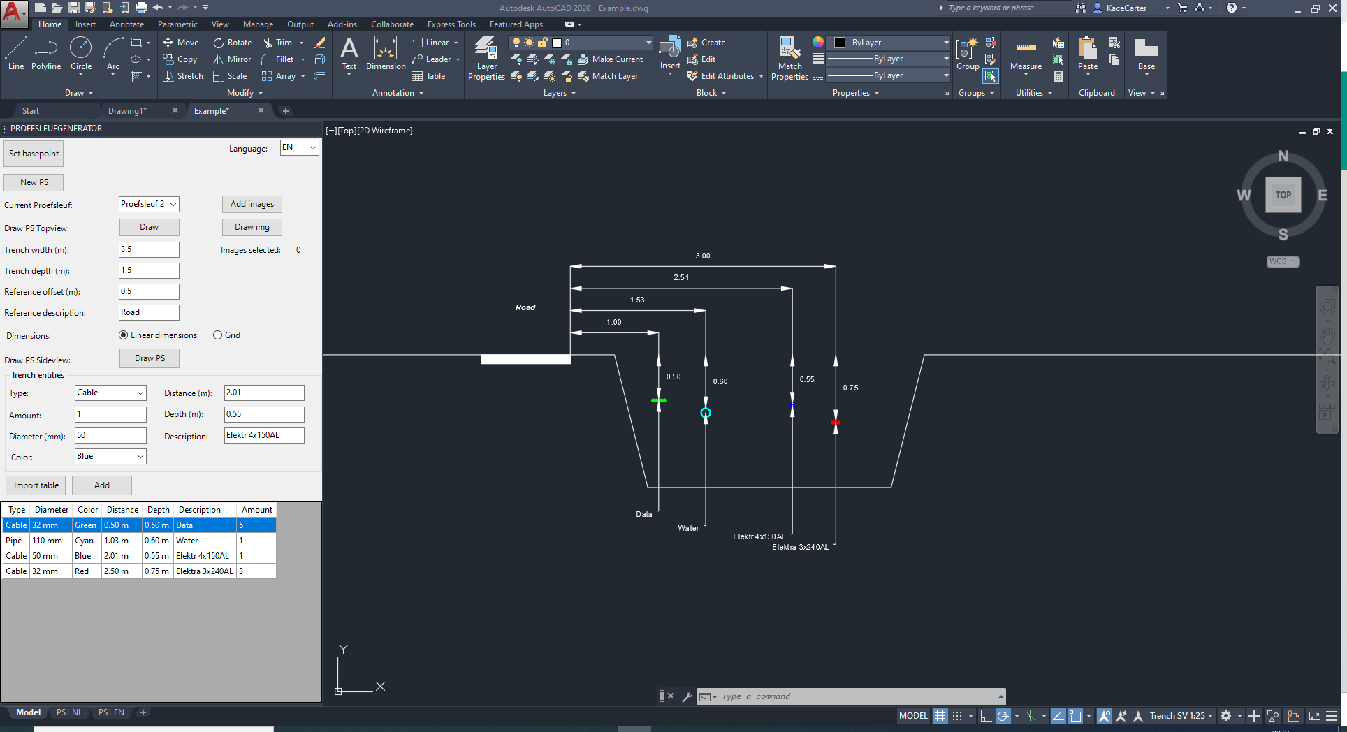
When deciding where to lay new pipes & cables, trial trenches are dug to determine the exact location of the existing pipes & cables. Recording these has always been intensive work with pen and paper and translating that to a decent Report.

Próbaverzió leírása

This app is fully functional and free for the first 30 days.

After this period a paid license is required. Please contact info@pro-cad.nl for pricing or bulk purchasing.

This process can take up to 3 business days.

Verzióinformáció

Verzió 1.2, 2021. 09. 13.
Added the ability to save all the data in the drawing. Saving is triggered when a draw button is pressed and loading occurs when you open this tool. Added the type Triplex for medium-voltage connections. You can now add trench cables and pipes by selecting blocks (GPS points). Reference offset is selectable.


Képernyőfelvételek és videók


Ügyfélértékelések

0 értékelés
Műszaki segítségnyújtás
Ugrás a tetejére