7cad Window Frame

7cad Window Frame

Win32 and 64, English

7cad
Automatically draw the window frame front view and sections.

General Usage Instructions

Prepare your drawing:

  • Drawing units should be in metric millimeters. The dimension text should be 20 or 25. The annotation scale should be 20 for best visibility.
  • To quickly grasp the workflow, you should open the Sample Test.dwg drawing and follow the instructions. The link to the Sample Test.dwg is available on the 7cad Window Frame Palette.
  • Run the 7cadWindowFrame command from the app's ribbon or command prompt. Then, you can see the app's palette. Following is the workflow of the app, from creating inputs to generating outputs, all commands are on the Palette:

 

1. Insert Window Frame

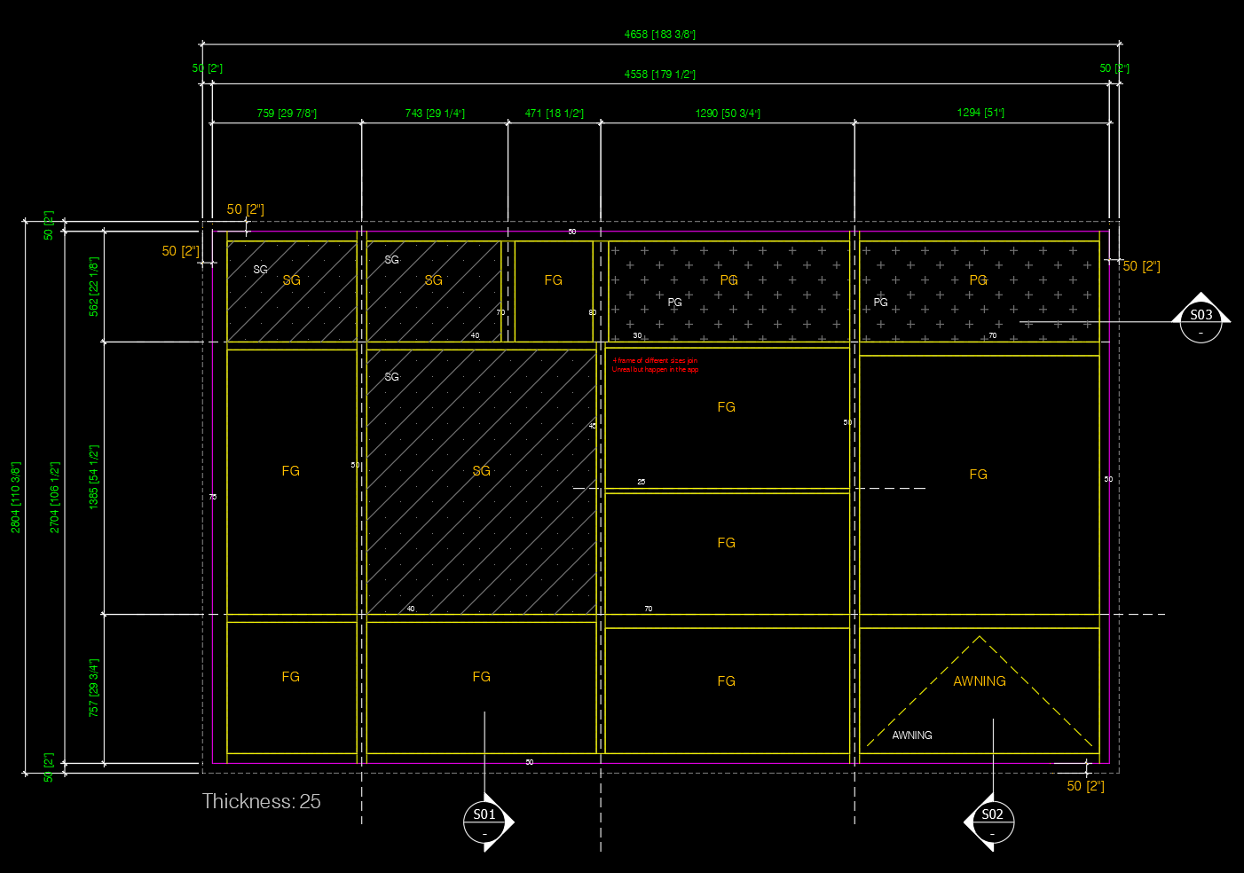
This is the base object. Once inserted, you can select the window frame and adjust the left, right, top, and bottom jam and thickness lengths by using the AutoCAD Properties palette.

 Note 1: The 4 frame sizes of the Window Frame are 40 by default. Edit the size tag texts to your design specification.

 Note 2: There is a thickness attribute of all window frame tubes. The default value is 25. Edit it to your design specification. 

 

2. Draw window frame sketch lines

Within a window frame, there are many dividing rectangular tubes. Input for these tubes is lines in the "Window Frame Sketch" layer. Lines must be horizontal or vertical, and lines should not cross each other or cross the window frame. On each line, there is a tag text as input for the frame size. Edit these frame-size texts using AutoCAD's common editing tools. Also, split the frame sketch line into two lines if you want to have different sizes.

 Tip 1: Set your Window Frame Sketch layer line type to HIDDEN line type for the best visibility result, as in the Sample Test.dwg drawing.

 Tip 2: Each frame sketch line should have only one tag, and each tag should be associated with only one frame sketch line. Move tags on frame sketch lines so that there is no confusing case, like one tag close to 2 frame lines. 

 

3. Insert infill glass tags

Infill glass tags are just texts in the "Window Frame Sketch" layer. They are input objects for the app to generate glass window panes. There are 4 types of them: FG, SG, PG, or AWNING. 

 

4. (Optional) Insert Section Callout

The app works only with horizontal and vertical section callouts. Insert and move these section callouts into their places. The app reads these section callouts to generate Detailed Sections.

Note: The detail section is scaled up 5 times in the Y axis for better visibility. 

 

5. Final command: 7cad Window Frame Generate.

Select input objects and press Enter. The app will generate the Window Frame drawing as the final result. 

 

6. (Optional) To clear the output results and get back to "sketch canvas" to edit the sketch lines and texts, run this command: Clear Window Frame Result.

Note that, command (5) 7cadWindowFrameGenerate already includes this command (6). That means, (5) will clear the outputs before generating new ones.

Commands

Ribbon/Toolbar Icon Command Command Description

7cadWindowFrame

Open the 7cad Window Frame Palette to start drawing and generate window drawings.

Installation/Uninstallation

The installer that ran when you downloaded this app/plug-in from the Autodesk App Store will start installing the app/plug-in. OR, simply double-click the downloaded installer to install the app/plugin. You may need to restart the Autodesk product to activate the app/plug-in. To uninstall this plug-in, exit the Autodesk product if you are currently running it, simply rerun the installer, and select the "Uninstall" button. OR, click Control Panel > Programs > Programs and Features (Windows 10/11) and uninstall as you would any other application from your system.

Additional Information

Your window frame drawings can be different, using different blocks, etc. Contact me for a custom programming service request to tailor the app for you.

Known Issues

Contact

Company Name: 7cad
Support Contact: linh@7cad-programming.com

Author/Company Information

7cad

Support Information

Contact me, Linh Pham Vu Hong, at linh@7cad-programming.com

Version History

Version Number Version Description

1.2.0

Added AutoCAD 2026 support. 7cad Framework files updated.

1.1.0

Added AutoCAD 2025 support. 7cad Framework updated.

1.0.0

Initial release
Go top