
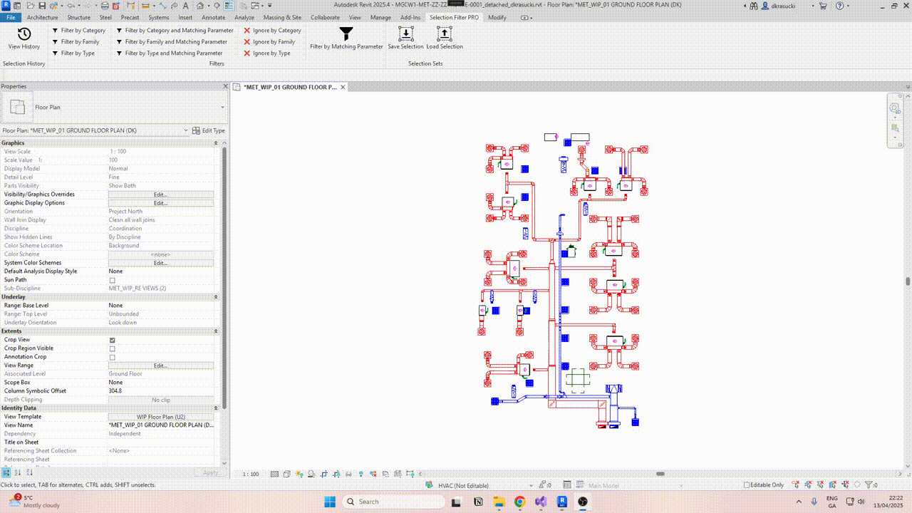
Master Tools Selection Filter PRO
Paid
OS:
Language:
Description
Selection Filter PRO extends Autodesk® Revit® selection capabilities by allowing you to apply filters directly to your cursor, ensuring you only select the elements you intend to, No more tedious hunting or accidental selections in busy models.
Why Selection Filter PRO?
✅ Easy to use
✅ Minimal UI - stays out of your way
✅ Keybinding supported for all commands
✅ Works with both built-in and custom parameters
✅ Will be updated for all future Revit versions
Included Features
- Selection History - Tracks selected elements for quick re-selection.
- Filters
- Filter by Category - Create a selection filter that only allows the specified Categories.
- Filter by Family - Create a selection filter that only allows the specified Families.
- Filter by Type - Create a selection filter that only allows the specified Types.
- Filter by Category and Matching Parameter - Create a selection filter that only allows the specified Categories with matching specified Parameter values.
- Filter by Family and Matching Parameter - Create a selection filter that only allows the specified Families with matching specified Parameter values.
- Filter by Type and Matching Parameter - Create a selection filter that only allows the specified Types with matching specified Parameter values.
- Ignore by Category - Create a selection filter that ignores the specified Categories.
- Ignore by Family - Create a selection filter that ignores the specified Families.
- Ignore by Type - Create a selection filter that ignores the specified Types.
- Filter by Matching Parameter - Create a selection filter that only allows Elements with matching specified Parameter values.
- Selection Sets -Save selection sets that anyone can load and reuse.
Looking for more than an off-the-shelf solution? Let's craft a custom tool tailored to your specific needs. Get in touch—let’s brainstorm together.