 
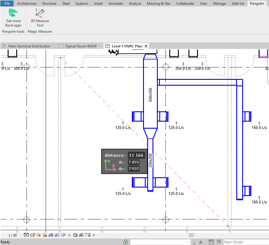
                    Magic Measure - 3D Measure Tool
        Y, M, Free 30-Day Trial
                                OS:
                                Language:
                            Description
With this tool, you can measure a distance between 2 points in a 3D view.
The workflow is fast and easy:
- Open a 3D view and start the add-in
- Pick the first point in the view
- Pick the second point
The 3D distance between these 2 points will be displayed on the screen, along with its X,Y and Z components.
Of course, you can also use this add-in in a 2D view. Useful to get the horizontal and vertical components of a given distance.
You can download a free 30-day trial version of this app to make sure it is the perfect solution for you and your company. Once the 30-day trial is over, you will still be able to use the app, but you will have to wait 15 seconds each time you run the plug-in after the first run.
A single subscription is compatible with Autodesk® Revit® from the version 2020 to 2024.
 
                         
                         
                         
        
This app is very powerful and useful. I use for bridge and others models com a lot of slope and levels. For a low price.
simple to use and very useful in day to day.