
MEP Utilities: Item Selection Tool 2022
Leírás
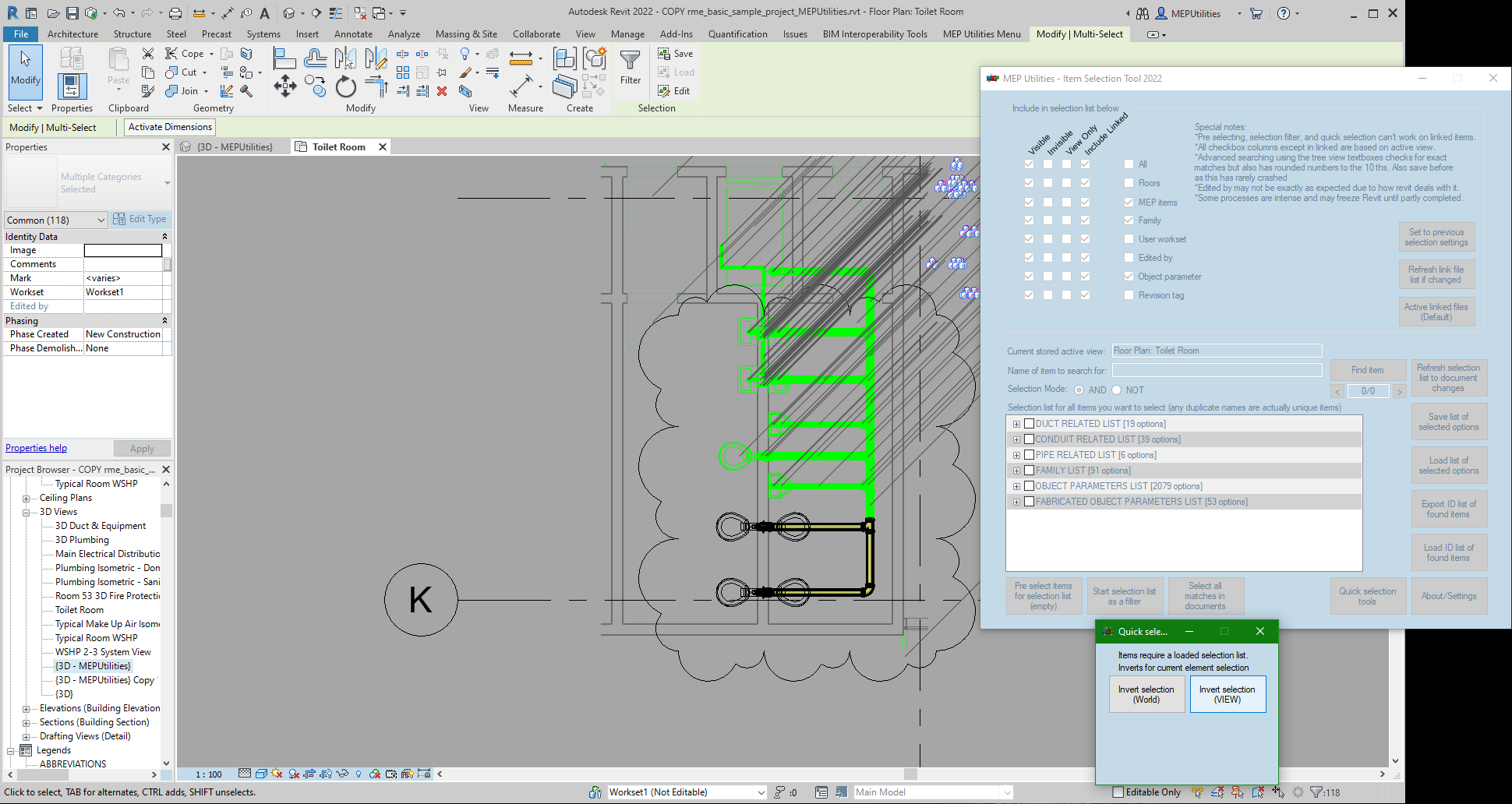
Autodesk® Revit® add-in tool that gives advanced and fast select methods for project elements allowing for better manipulation and collecting. By improving the process of finding and selecting elements time can be saved scrolling around projects, subsets of items can be better managed, and the use of exporting and loading element lists can allow faster references of previous work areas.
Prerequisite: This program will require MEP CORE 2022 installed to run. This program is available on the Autodesk app store where it is most up to date "https://apps.autodesk.com/RVT/en/Detail/Index?id=7039168314726398819&appLang=en&os=Win64" but is also included in this installer up to the version it requires.
Note: This app uses a custom installer (and not the standard App Store installer).