Center Gravity

Center Gravity

무료
OS:
언어:

설명

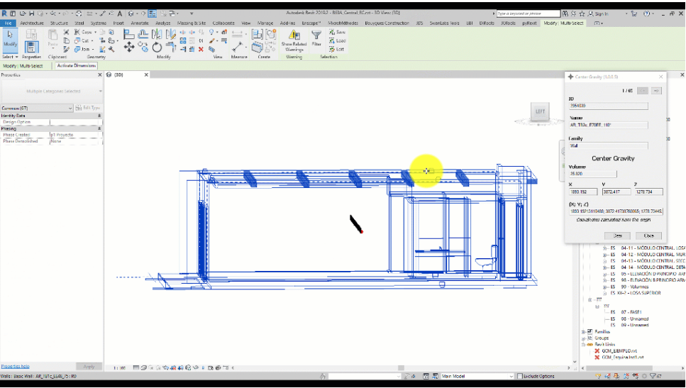
This tool allows you to calculate the Center Gravity (CG) of an element or of the set of elements; essential data if you want to carry out a lifting study.

 

Once the plugin is installed, the JDS tab will appear in Autodesk® Revit® which contains this and all the author's solutions.

 

You can see in action bellow this link.

https://www.dailymotion.com/video/k1tDe8I0RdXQaRx1SXu

이 버전 정보

버전 1.0.0.6, 2025-04-14
- Improved filtering of selection items. - Total volume is shown. - XYZ vector is displayed according to the unit of measurement of the Revit file. - Displayed description "Coordinates calculated from the origin". - Implemented F1/Contextual help.


스크린샷 및 비디오


고객 리뷰

5 리뷰
기술 도움말 보기
  • New release
    Juan Daniel Santana | 4월 15, 2025

    Dear customer,

    I am pleased to inform you that a new version of the Center Gravity plugin has just been released with support until Revit 2025.

    Andrzej Jakubowski | 9월 18, 2025

    Hello, Great tool. Do you plan to release it for Revit 2026 in the near future?


  • Good job!
    Elkan Dhatavkar_T | 2월 28, 2024 다운로드 확인 (이것은 무엇입니까?)

    Good job!


  • Revit 2023
    Jan de Grosse | 10월 18, 2022 다운로드 확인 (이것은 무엇입니까?)

    For Revit 2023 users:

    - Install msi

    - Copy "C:\ProgramData\Autodesk\ApplicationPlugins\jdsantana Center Gravity.bundle\Contents\2022\CenterGravity.addin" to "C:\ProgramData\Autodesk\Revit\Addins\2023\"

    - Edit C:\ProgramData\Autodesk\Revit\Addins\2023\CenterGravity.addin"

    - Replace "<Assembly>CenterGravity.dll</Assembly>" with <Assembly>C:\ProgramData\Autodesk\ApplicationPlugins\jdsantana Center Gravity.bundle\Contents\2022\CenterGravity.dll</Assembly>

    Miguel Munoz | 10월 27, 2022

    Where is the folder where you should replace CenterGravity.dll?

    Lisa Gonzalez | 11월 01, 2022

    Thank you, Jan Miguel, after you copy the "CenterGravity.addin" file to the 2023 folder, you open it with a text editor and change the Assembly line to reflect the file path to the original addin file in the 2022 folder. If it doesn't work, it'll be because of a type on the file path: jdsantana Center Gravity.bundle has spaces in it - that's what tripped me up the first time.

    Kaitlin Pickett | 3월 15, 2023

    Can confirm this works great! Thank you

    Aarthi S | 10월 18, 2023

    I got certain issue while installing in Revit 2023, Kindly guide me with this process

    Jeremy Cripps | 3월 06, 2025

    Did this for 2024. Not working for 2024? Center Gravity error exception C:ProgramData\Autodesk\Revit\Addins\2024/../Resources/CentreGravityFamily.rfa


  • Just Plain Works
    Annie Nielson | 8월 30, 2022 다운로드 확인 (이것은 무엇입니까?)

    I had no issues with this, and it just plain worked! Thank you thank you!!!


  • BOM APLICATIVO
    Joao Vitoria | 7월 06, 2021 다운로드 확인 (이것은 무엇입니까?)

    BOM APLICATIVO

맨 위로 이동