
Align Plus
설명
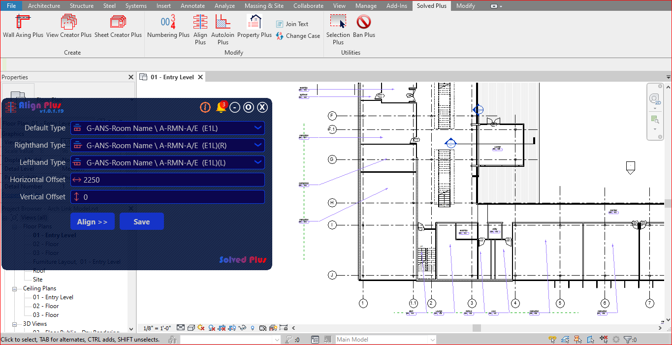
Align Plus can be used to align all selected room tags to a selected detail line to give your sheets a more professional look.
It's recommended to use the room tag family provided with Align Plus to give you the perfect result
- For Defult Type: A-RMN-A/E (E1L)
- For Righthand Type: A-RMN-A/E (E1L)(R)
- For Lefthand Type: A-RMN-A/E (E1L)(L)
- For Horizontal Offset: 2160 or 2250 (those values are in mm)
- For Vertical Offset: 0
(Horizontal & Vertical Offset values are used to control the elbow point location related to the family origin point)
Free 30-Day trial:
The app is free for the 30-day trial, during which user can purchase the app from the store via the PayPal payment method & click on the “License request” button available on the Align Plus app window. Fill in the details & submit. You will receive the valid license in 4 working days. The user can purchase the app & request the license on or before the 26th day of the trial period to avoid any interruption to using the app post-30-day trial.