Light Distribution
Pagato
Sistema operativo:
Lingua:

Descrizione

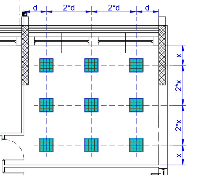
Light Distribution distribuisce i blocchi dei corpi illuminanti o altri apparecchi montati a soffitto in una stanza secondo la regola che: la distanza tra gli elementi è il doppio della distanza tra gli elementi e le pareti della stanza

il programma richiede:

  • il numero di lampade o elementi da disporre
  • la definizione del perimetro della stanza (specificando 2 o 3 vertici)
  • il nome del blocco da inserire per rappresentare la lampada o elemento

Grazie a questi input il programma - in automatico - dispone gli elementi secondo un schema ottimale.

Premendo il tasto TAB si può cambiare lo schema distributivo sino a trovare quello più consono al tipo di stanza .

 

Un ulteriore strumento per perfezionare la disposizione delle lampade è la possibilita di ruotarle - premendo il tasto R - ciclicamente intorno al loro punto di inserimento.

Il cambio di layout e la rotazione avvengono tutte in maniera interattiva, così il progettista può rapidamente visionare tutti i possibili layout applicabili a quella stanza con quel numero di elementi.

Il programma gestisce anche la distribuzione degli elementi in stanze non ortogonali agli assi di disegno.

 

Light Distribution può disporre gli elementi anche lungo un percorso o un oggetto esistente che lo rappresenti (Polilinea, Linea, Arco, Cerchio e Ellisse).

Nel caso gli oggetti siano chiusi (Cerchio, Ellisse e Polilinea) i blocchi vengono disposti equidistanti tra loro senza applicare la regola sopra descritta.

 

Inoltre è possibile configurare il programma (icona con le 2 rotelline poste in alto a destra) in modo che imponga un fattore di scala ai blocchi inseriti.

Informazioni sulla versione

Versione 1.0.0, 26/03/2026
Aggiunto supporto a versione 2027 (nessun cambiamento nel numero di versione)


Schermate e video


Recensioni dei clienti

2 recensioni
Richiedi assistenza tecnica
  • Спасибо? Работает.
    Abzal Sul | febbraio 25, 2023 Download verificato (Guida rapida)

    Надо зайти через аккаунт Автодеска в приложении Автокад на значке тележки. Иначе пишет что лицензия не активна


  • Taras
    Taras Zelensky | gennaio 14, 2021

    Similar program - https://apps.autodesk.com/ACAD_E/en/Detail/Index?id=5160923965188519124&;appLang=en&os=Win32_64&mode=preview&autostart=True&loginRequired=True

Vai all'inizio