Auto Reinforcement bars

Auto Reinforcement bars

Г
ОС:
Язык:

Описание

Auto Reinforcement bars is a software for Autodesk® AutoCAD®. It allows you to facilitate the realization of the reinforcement plans for a concrete structure.

 

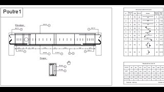
The software is made to simplify the creation and the modification of the reinforcement necessary for your project as much as possible, thanks to the predefined shapes and a lateral options palette. The dynamic markings on the reinforcement allow you to create clear plans and save time during modifications. The summary tables help you to build, in one click, the summary of your marked reinforcing bars, as well as the total weight and the average diameter.

 

Auto Reinforcement bars have all the necessary elements for the realization of the reinforcement plans for construction:

  • Simple creation of reinforcement thanks to predefined shapes.
  • Edition and modification of the reinforcement thanks to a palette of options.
  • Dynamic marks for the reinforcement bars.
  • Recapitulative tables of the reinforcement (diameter, number, shape, bending diameter, total length).
  • Export of tables to Excel.

 

Main functions:

 

Longitudinal Rebars:

Longitudinal Rebars have 6 predefined shapes and are particularly suitable for using the bending diameter recommended for large-diameter reinforcement bars. These bending diameters are configurable in the general options.

 

Stirrups:

The Stirrups have 5 predefined shapes and have the particularity of using the bending diameter recommended for the transverse reinforcement (stirrups). These bending diameters are configurable in the general options.

 

Distribution Rebars:

The Distribution Rebars allow the creation of a distribution of reinforcement bars over a defined length, thanks to 3 options: a defined number, constant distribution, and variable distribution.

Longitudinal Rebars, Stirrups, and Representation Rebars can be distributed thanks to this function.

  

Representation Rebars:

The Representation Rebars are a copy of the Longitudinal Rebars or the Stirrups following a view (X, Y, Cut). That option is the most interesting because the Representation Rebars work in conjunction with your reference Rebar. If the reference Rebar is modified, the Representation Rebar will be modified

 

Marks:

Marks allow referencing the Rebars. They can show the number, diameter, distribution, and shape of the referenced Rebar. The marks are dynamic, which means that they are updated every time the marked Rebar is modified.

 

Note:

The copy, move, and stretch commands in AutoCAD can be used for Rebars.

You can find some videos below showing the use of the software. If you need more information, our technical support is available.

Сведения об этой версии

Версия 2.1.0, 29.08.2025
Marks on multiple Rebar Added a weight column per reference Added associated mark Bugfix


Скриншоты и видео


Рецензии клиентов

8 оценки
Техническая поддержка
  • setting metric units
    Mario Sticco | октября 21, 2024

    It is possible to set the mark and callout for the rebar in metric units, for example: 1ɸ14/20 cm?

     


  • Bon logiciel pour ferraillage simple, mais...
    Pierre-Alain Glaser | апреля 23, 2024 Проверенная загрузка (Что это такое?)

    Logiciel peu onéreux et simple, mais paralysé par des bugs variés qui freinent le travail, surtout quand on commence à faire du ferraillage de grande taille ou complexe.

    Il faut beaucoup enregistrer pour ne pas risquer de tout perdre car la moindre erreur d'utilisation peut faire crasher ou bloquer Autocad.

    Hebert Clement (Разработчик) | сентября 23, 2024

    Merci pour votre retour, nous sommes désolés d'apprendre que vous rencontrez des problèmes. Nous travaillons chaque jour à améliorer la stabilité de notre application. Nous vous recommandons de vérifier que vous utilisez bien la dernière version de l'application, disponible sur le store. N'hésitez pas à nous faire part de vos remarques pour que nous puissions continuer de l'améliorer.


  • Designer Technologist
    April Mcdonald | октября 25, 2023

    This is amazing.  This will save abundant amount of time.


  • Trial
    N Oliveira | октября 11, 2023

    Could I request to download the trial version?


  • Trial please
    Wawan Kuncoro | октября 01, 2023

    can we try the lite version? before we decide to subscribe?


  • Requisition and Question?
    savivan phongxaiyasan | мая 27, 2022

    I have a question and would like to add these menu tools

    1. chairs rebar?

    2. wire mesh?

    3. add a mark at the end of the rebar?

    Overall your product is fantastic.


  • Useful
    Roman Gillig | февраля 22, 2022

    Very useful plugin to save time ! Easy to work and learn.

     


  • Good One
    S M | октября 06, 2021 Проверенная загрузка (Что это такое?)

    Good

    Lotfi Lotfi | февраля 21, 2022

    OK

    UDDOM CHHENG | июля 11, 2022

    Hello sir. Could I request to download the trial version?

Наверх