
Symmetrical Line
Бесплатное
ОС:
Язык:
Описание
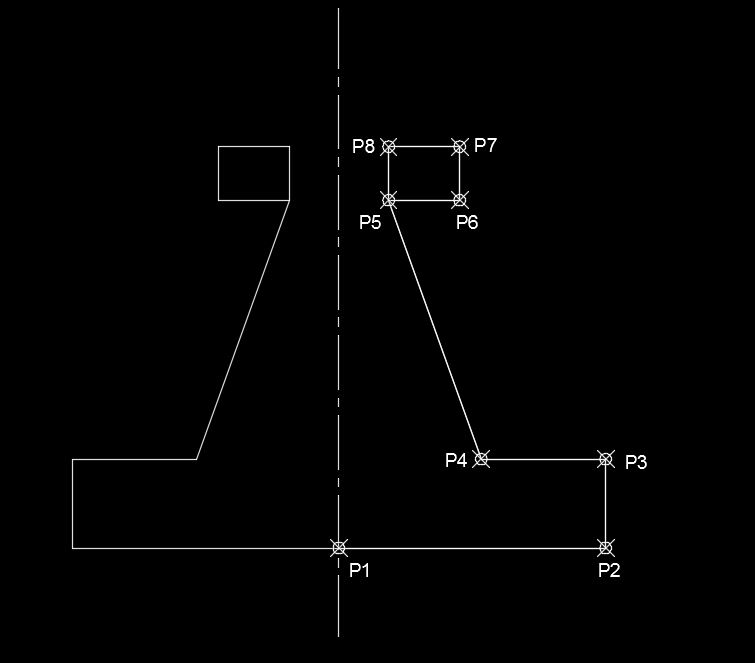
Using this Add-in, the user can create symmetrical lines based on a mirror line.
The continuous lines drawn in the Autodesk® AutoCAD® drawing will be automatically mirrored based on the selected mirror line.
The App has option to automatically close the continuous line loop when exiting the command and also has option to undo the last line.
Сведения об этой версии
Версия 1.4, 20.09.2022
Autodesk® AutoCAD® 2019 to 2023 Versions are supported.
Thank you so much for sharing free. Works perfectly. Best regards, C. Alifantis