AUTOXLINES Move/Copy/Stretch

AUTOXLINES Move/Copy/Stretch

Płatne
System operacyjny:
Język:

Opis

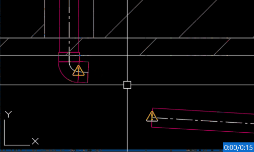
This application allows you to move/copy/stretch objects from a specified base point to the calculated intersection point of lines.

 

The user would normally have to construct to define that point. The application has a mode to move/copy/stretch "independent" objects (that is - lying anywhere) and dependent objects such as objects lying in specific relation to other objects (like a pipe and the fitting at the end of it).

 

The program operates in the XY (2D) plane of the current view ("ucs view").

Informacje na temat tej wersji

Wersja 5.0.1, 26.03.2025
Added 2026 support.


Zrzuty ekranu i nagrania wideo


Recenzje klientów

0 recenzja
Pomoc techniczna
Przejdź do góry