
BalloonMaster
Zkušební
Operační systém:
Jazyk:
Popis
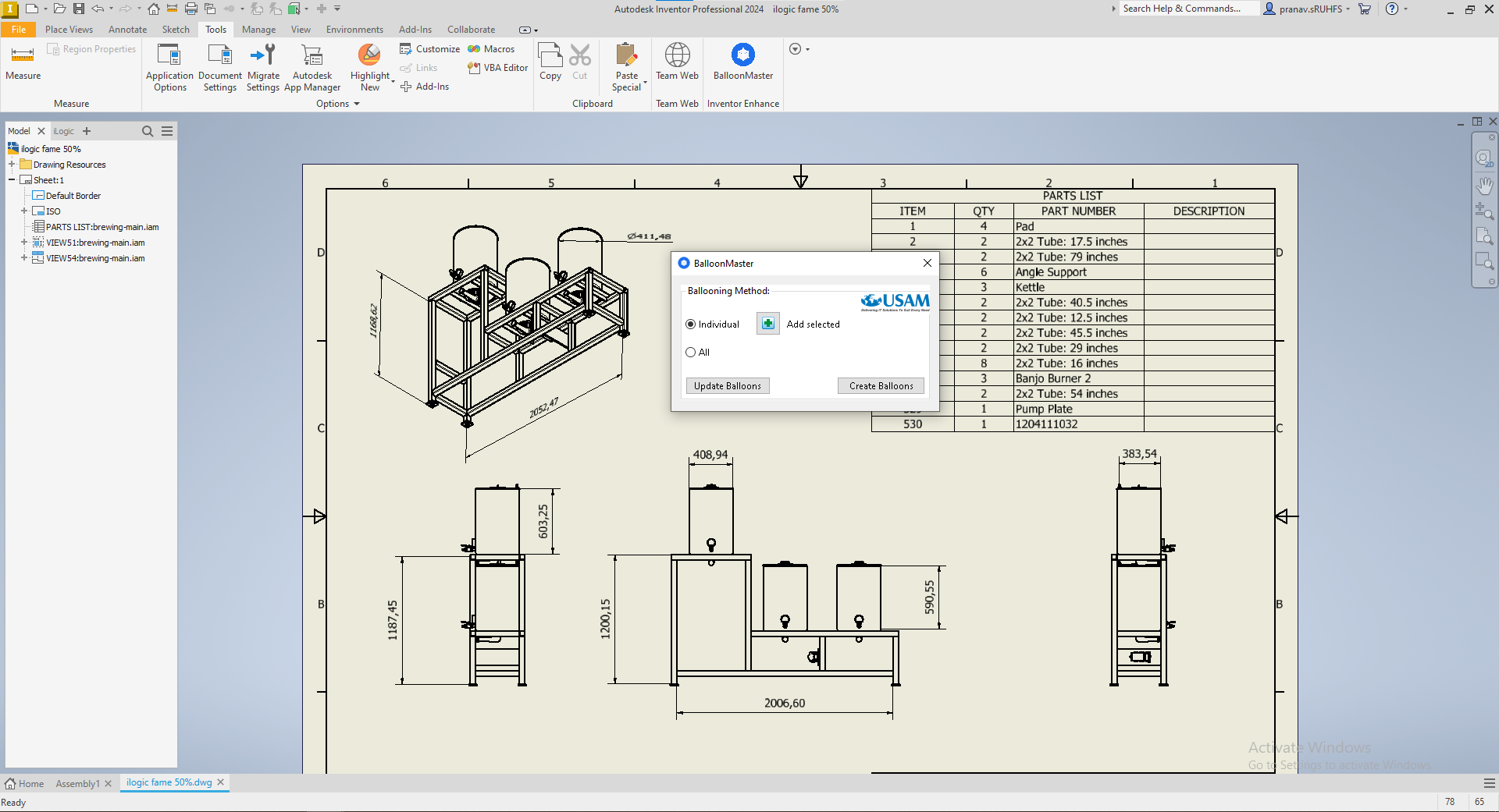
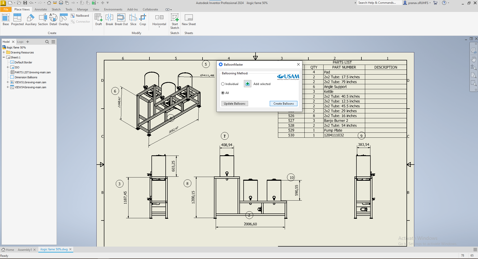
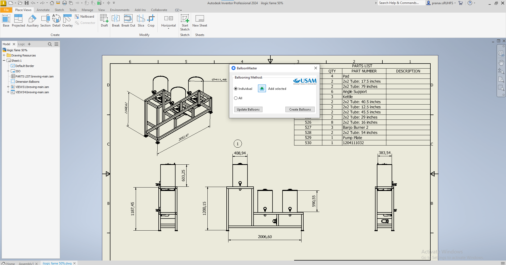
BalloonMaster is the ultimate tool designed to streamline the process of ballooning dimensions for inspection purposes in Autodesk® Inventor®. This powerful add-in offers flexibility and precision, making it an indispensable resource for engineers and quality control professionals.
With BalloonMaster, you can:
-
Select Individual Dimensions for Ballooning:
- BalloonMaster allows you to pick and choose specific dimensions within your drawing to apply balloons. This is particularly useful when you need to highlight key measurements or critical dimensions for inspection. By selecting dimensions individually, you can ensure that only the most relevant and important dimensions are marked, reducing clutter and focusing on what matters most.
-
Apply Balloons to All Dimensions:
- For a comprehensive inspection process, BalloonMaster offers a feature to apply balloons to all dimensions in your drawing automatically. This ensures that every measurement is accounted for, making it easier to perform thorough inspections and quality checks. This feature is ideal for creating complete and detailed inspection reports with minimal effort.
Popis zkušební verze
30 Days free trial on our addin.
Informace o této verzi
Verze 1.0.0, 17.09.2024
Initial Release.