7cad Window Frame

7cad Window Frame

Digitally signed app

30 天免費試用版, 已付款
作業系統:
語言:

說明

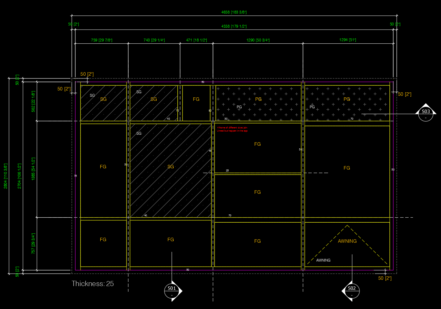
Run 7cadWindowFrame will open a palette of drawing commands. Firstly, you draw a sketch drawing as input, using the palette sketching commands.

 

The sketching drawing includes blocks, lines, and tag texts which can be easily edited, copied, and moved using native Autodesk® AutoCAD® tools.

 

Finally, run the 7cad Window Frame Generate command (command number 5 on the palette) and select your sketching drawing objects.

 

The result will be detailed Window Frame drawings, with sections, as demonstrated in the screenshots below.

關於此版本

版本 1.2.0, 2025/5/7
Added AutoCAD 2026 support. 7cad Framework files updated.


螢幕快照和視訊


客戶評論

0 評論
取得技術說明
移至頂端