Operační systém:
Jazyk:

Popis

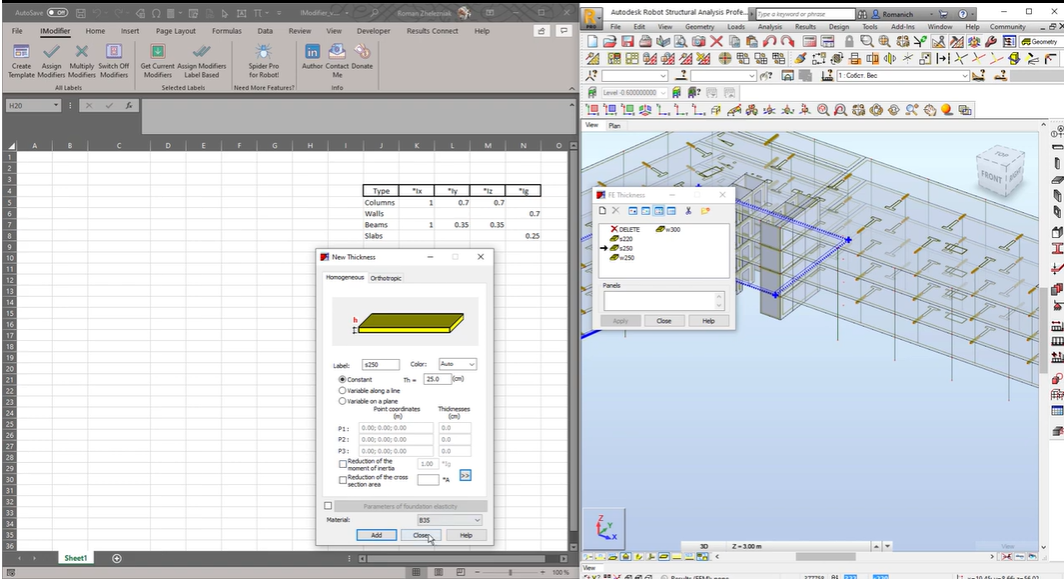
The app allows a user the batch edit the modifiers for the moments of inertia for RC beams, RC columns, homogeneous slabs and walls.

 

Note: This app uses a custom installer (and not the standard App Store installer).

Informace o této verzi

Verze 1.0.0, 14.04.2026
Initial release


Snímky obrazovky a videa


Hodnocení zákazníků

2 hodnocení
Získat technickou pomoc
  • Awesome tool!
    Mihdí Caballero | prosince 02, 2024 Ověřené stažení (Co je to?)

    Simple and effective! 


  • Great tool!
    Nuno Teixeira | ledna 01, 2021 Ověřené stažení (Co je to?)

    Great tool, very handy to have one place where we can change all the inertias in a simple click!

Přejít nahoru