
The IModifier
免费
操作系统:
语言:
描述
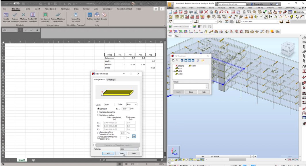
The app allows a user the batch edit the modifiers for the moments of inertia for RC beams, RC columns, homogeneous slabs and walls.
Note: This app uses a custom installer (and not the standard App Store installer).
Simple and effective!
Great tool, very handy to have one place where we can change all the inertias in a simple click!