
SOFYA Sales plan add-in TRIAL
Testversion
Betriebssystem:
Sprache:
Beschreibung
This trial allows you to create 30 sales plans in a couple of minutes.
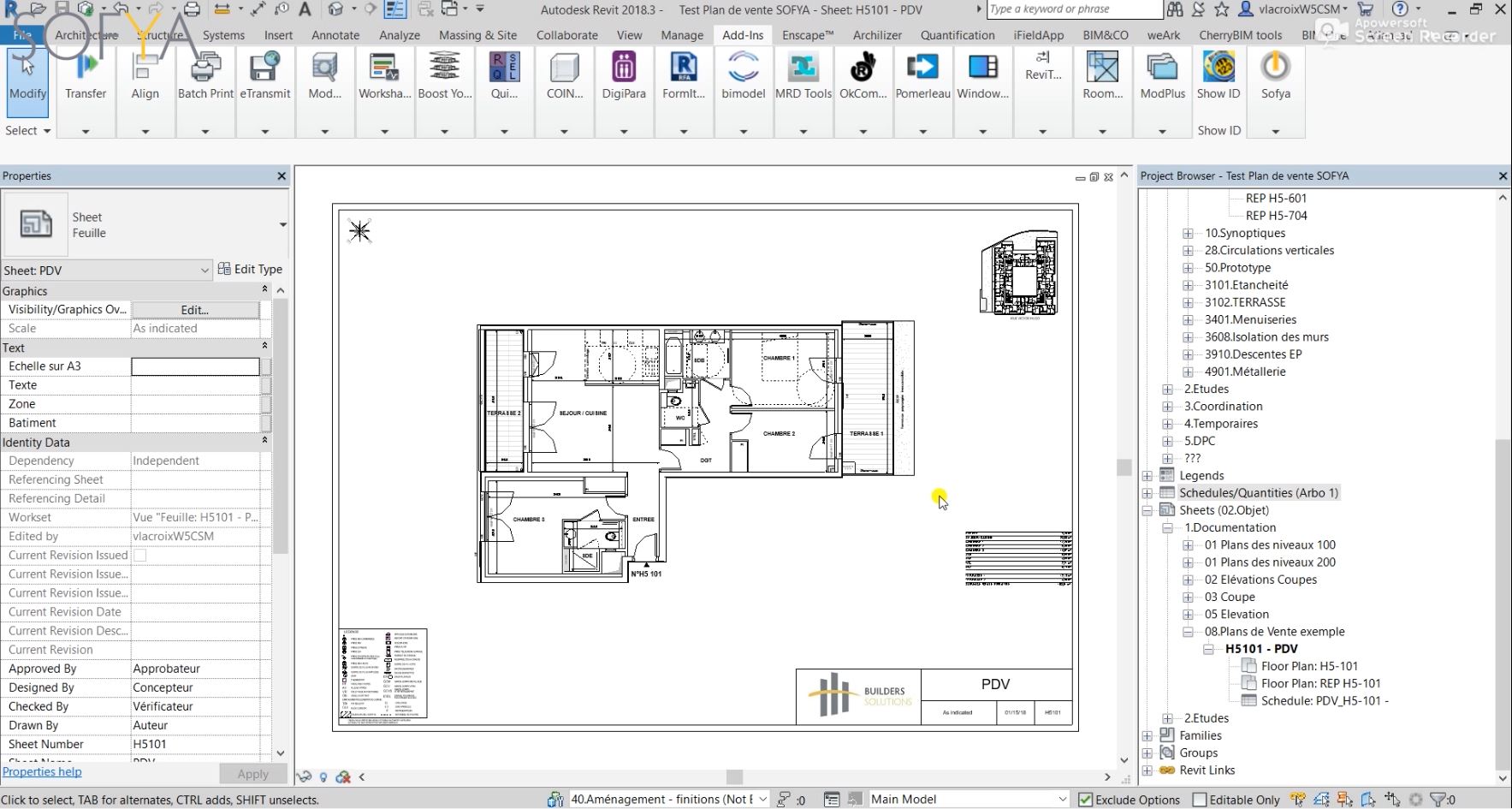
Usually, you create your sheet one by one by choosing a Titleblock and then dragging your views, your schedule, your legend, etc... It can take days to create your plans.
With this add-in, you automate all those tedious tasks, You don't need to create all the views of your apartments, you only need a filter parameter for all rooms on each apartment.
The add-in takes just one plan as a model (which contains an apartment view, a level view, and a schedule for example) and reproduces the same scheme for all the apartments you want in your model.
Key features:
- Produces 30 sales plans according to a model you created
- Create the views off all the apartments you choose and the corresponding level views
- Works with linked project
- Reproduce the Titleblock you use
- Reproduce the templates of the model views
- If you put a schedule filter on the parameter, the add-in will produce all the schedules for all the apartments and add them to all your plans
- You can add a legend view as well
Test-Beschreibung
30 sales plans for free !
Informationen zu dieser Version
Version 0.0.1, 13.09.2021
Trial version