
Section/Elevation Height Editor
Beschreibung
When you draw a section or elevation in Autodesk® Revit®, the height of its crop box usually don't match your needs and there isn't any control or parameter that make it easier to change. You have to individually edit each section elevation by opening it, and resizing the section's/elevation's crop box height with difficulty!
It's time consuming and tedious work, especially when you have lots of sections elevations you want to use in sheets.
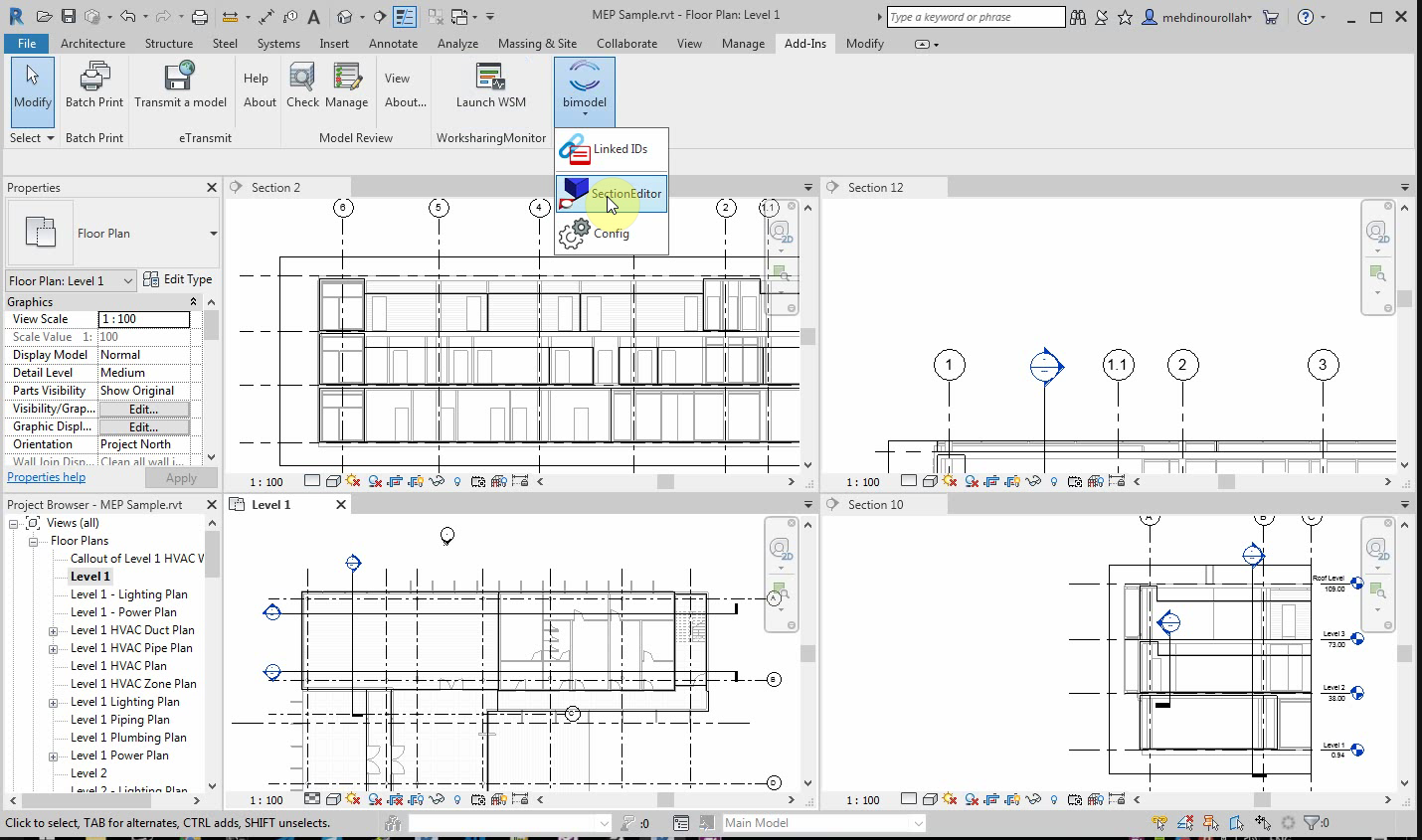
But the "Section Height Editor" App allows you to select multiple drawn sections and edit the height just by one click (you can set the configurations first and after that, it uses those set configurations.
This is a paid version and it checks your Autodesk user ID online, but if you want to use it offline you shall run the Revit as administrator online just once.
You can use the Trial version from HERE so don't hesitate and experience our Plugin for FREE
I can't believe this functionality still doesn't exist by default in Revit. I was really hoping this plugin was still in development, but unfortunately it does not work in Revit 2023+ - is there an update in progress or has the plugin been abandoned?
Hi Antonio, I'm allowing myself to inform you (as it looks that BIModel is no longer active - good luck in your future endeavours my fellow publisher!) that my plugin "Drafter" has very similar options (there are even more options to control vertical views).
I've used it in different projects, it's very useful when you want to make callouts of rooms and you have lots of sections to adjust, Specially in large projects!
I've used this add-in. It's work. But it was created the section at another level (I wanna create the section in level 1 but it was created level 7). Of course, I know used add-in. Is it work correctly in Revit 2018.3?
Thank u dear Thai for using Section Height Editor plugin... We will be editing and fixing the issue ASAP...then we publish the new fixed version and inform u ... Our Bimodel Team hopes that you checked out our other plugins and tell us about them too...
I've used your plugin ...it is useful for multiple sections that i wanted to change their heights!!!