
Room Scan and Sheet creation Pro
M, A
SO:
Idioma:
Descripción
Room Scan and Sheet creation are annotation elements that can be added and displayed in plan views and section views.
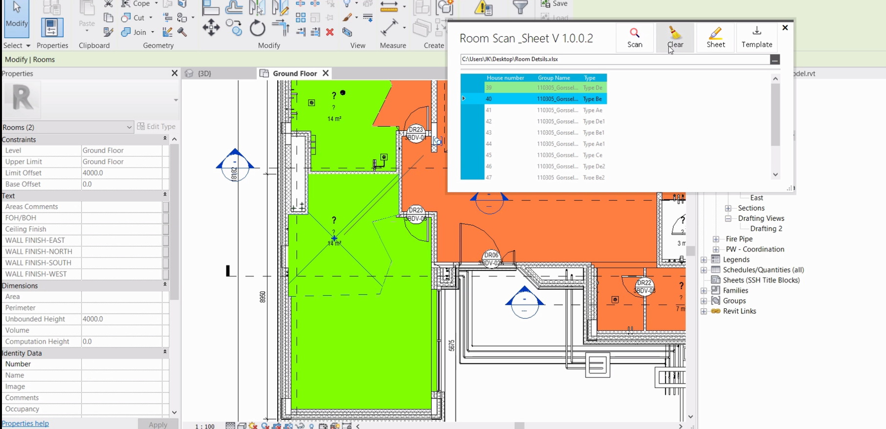
This tool will display values for the associated parameters, such as room number, room name, computed area, and volume. This tool will help the user to write the House Number and Name for each model group in Autodesk® Revit® by drag and drop.
If each group has more than one Room then each room adds the House Number and Name in a particular parameter and clears all Room Numbers and Names. Also, creates a sheet for each floor plan in the corresponding sheet in the Revit model.
Acerca de esta versión
Versión 1.0.0.2, 21/03/2023
Initial release