View Sets
Valutazione
Sistema operativo:
Lingua:

Descrizione

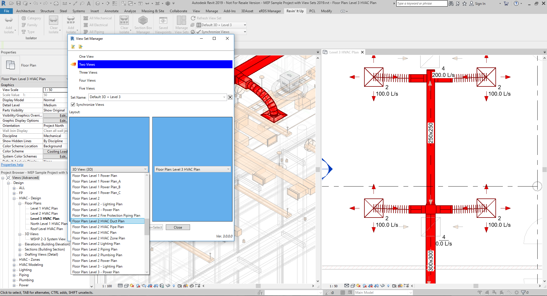
View Sets plugin for Autodesk® Revit® is a powerful tool that can greatly enhance your work efficiency. They allow you to save configurations of up to six views for retrieval at a later time. This means that you can set up your workspace exactly as you prefer, with specific views in certain positions, and then save this setup for future use. This can be a huge timesaver, especially when working on large projects or when you need to switch between different tasks frequently.

 

In addition, View Sets provide synchronization capabilities. This means that Plan, Section/Elevation, and 3D Views can be set to reflect the same area of a model or drawing. For instance, if you zoom in on a specific area in the Plan view, the Section/Elevation and 3D Views can be set to automatically zoom in on the same area. This helps to maintain consistency across your views and can be very useful when working on complex models or drawings that require frequent switching between views.

 

It's worth noting that while you can save up to six views in a View Set, you’re not limited to only six View Sets. You can create as many View Sets as needed for a project, allowing you to quickly switch between different configurations depending on the task at hand. 

 

Overall, View Sets are a feature designed to streamline your workflow, providing a way to easily save, retrieve, and synchronize views within Autodesk’s software. They are just one of many tools available within Autodesk's software suite designed to help you work more efficiently and effectively.

 

Note: This app uses a custom installer (and not the standard App Store installer). 

Descrizione della versione di prova

This is a 14-day Trial. Your Trial period starts when you install the app.

Informazioni sulla versione

Versione 7.0.0.0, 14/06/2024
Revit 2025 Compatibility Release. Added a Configuration for 6 Views.

Schermate e video


Recensioni dei clienti

3 recensioni
Richiedi assistenza tecnica
  • update ?
    Leo Chester | dicembre 18, 2025 Download verificato (Guida rapida)

    when will this be compatible with R2026 ?


  • Great but...
    Nathaniel Mcmahon | settembre 28, 2020 Download verificato (Guida rapida)

    Really require more than 5 views. Is there anyway to sync more than 5 views? can this limit be lifted?


  • PalladioXBIM Window Layout KILLER!
    Aric Crosson Bouwers | novembre 21, 2019

    Edit: For 2020, the view syncing isn't working anymore. It's still useful to lay out multiple views at once, but the main functionality that made it so good isn't working anymore. Is there an update coming that will fix this view syncing issue??

    This is exactly what i was looking for in an addin! Thanks for doing such a good job of it. I was bummed when i couldn't use PalladioXBIM in revit 2019 and newer, but you've made an even better version. IN ADDITION, you've incorporated an extremely useful functionality of being able to sync the views with each other - something i was using a completely different app for, and that one wasn't supported for Revit 2020 either! Thanks so much!

    Ruben Castro | agosto 27, 2020

    What was the other app you used to use for syncing views?

    Aric Crosson Bouwers | agosto 28, 2020

    The other app was View Sync (which i think was made by Edge GTS) Not sure what the status of it now is though.

Vai all'inizio