 
                    Clash Detection
 
     
        Digitally signed app
Opis
The Avant Leap CLASH DETECTION tool is an add-in to find, identify, record, update and solve collisions between model elements in Autodesk® Revit®.
The tool can detect clashes between Structural, MEP, Architectural, and even between each of the previous categories of elements in a model.
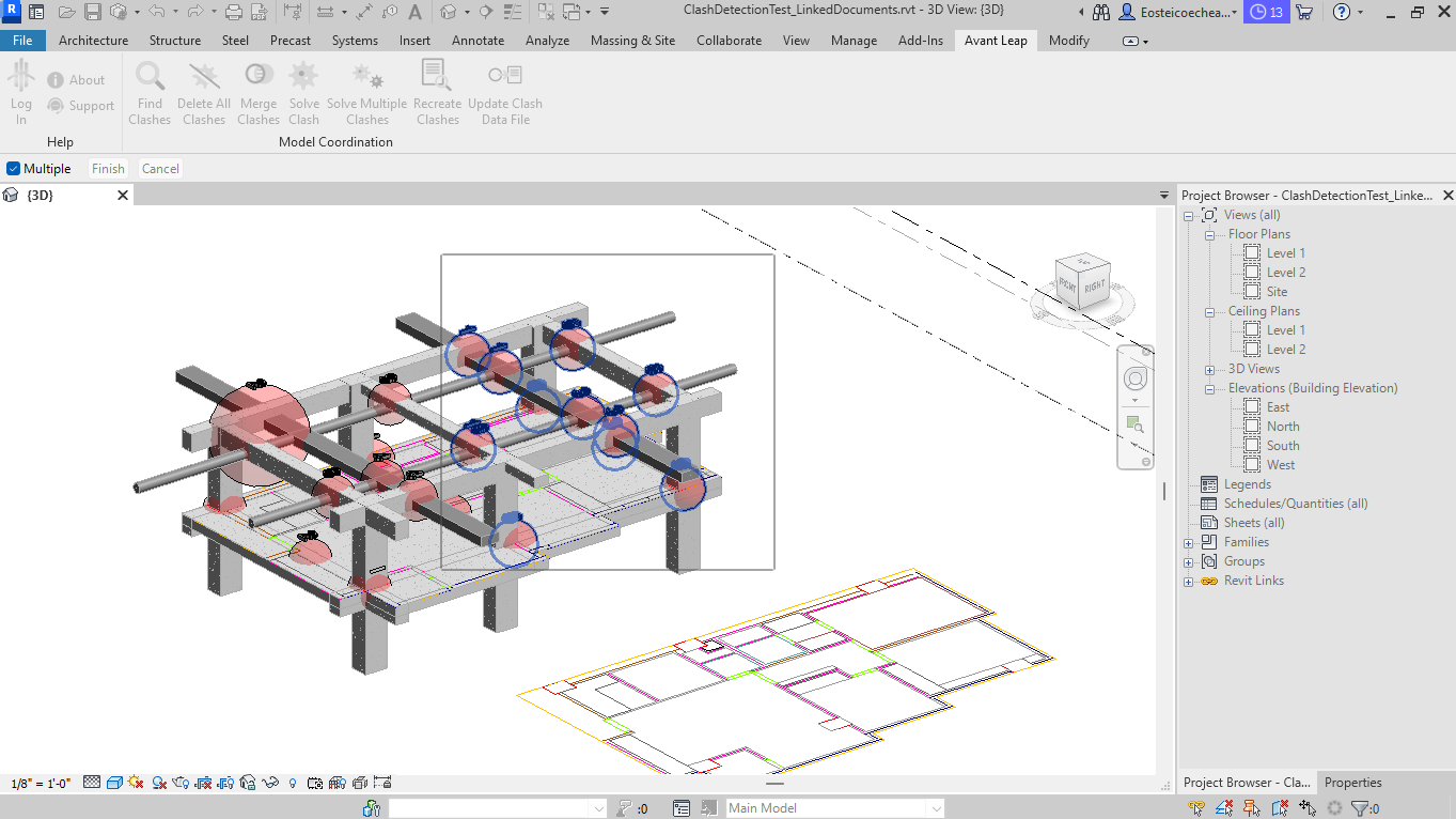
After detecting clashes, it records the data of conflicting elements in a data file, and places a Clash Identification Family in the location of each collision found.
Once the clashes are detected, the user can visualize the collisions in the model, report them, and when solved, communicate the solution by identifying the clash sphere in that location as "solved" by the solve clash command in our toolbar. This may seem trivial at first (one can think that an email is enough), but the "solve clash" command switches the clash sphere family type to "solved", changing the sphere's color to make the progress evident for all the participants, and updating the project's clash database for further analysis of the coordination process.
The clash database mentioned is currently a .json file (a standard way of organizing and sharing data), that records clash data, such as project, building, user, location, size, date, description, status, and more. Our addin will generate a database like this for each project that you analyze with the tool, and inform you about its location. This data storage for the clash data will be very valuable for further extensions of this tool where we'll provide an even more versatile usage of your data in the coordination process.
The Avant Leap Clash detection add-in workflow improves greatly the coordination process, providing an all-encompassing, collaborative, visual, trackable and intuitive process to solve collisions in a Revit model.
It works with a standalone document as well as with a collection of linked documents, analyzing every element of the current active document in Revit's UI (including its linked model elements), and checking for possible collisions.
It's important to state that this version displays the basic possibilities of the tool to obtain user feedback and provide us feedback on whether our team will develop more wide, and robust functionalities for this addin.
Much more can be achieved in the clash detection and solving aspect of coordination by a tool like this. If you're interested, don't hesitate to contact us, communicate your interest in further development of this add-in, and share with your colleagues to generate feedback through user interaction.
Note: This app uses a custom installer (and not the standard App Store installer).
 
				         
                         
                         
                         
                         
                         
                         
                         
                         
        
This did not work all that well and does not offer any in depth video tutorials.