 
                    AutoViewGenerator(AVG)
        Г, М, Бесплатная 30-дневная демоверсия
                                ОС:
                                Язык:
                            Описание
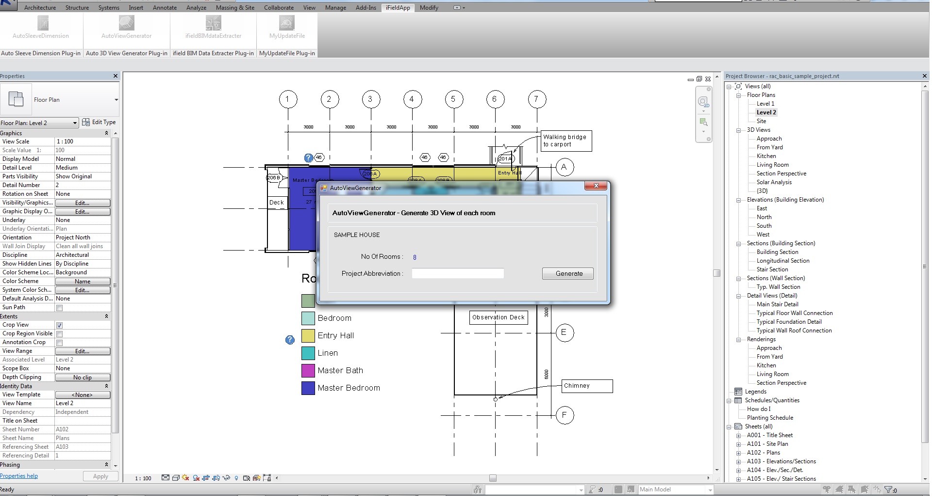
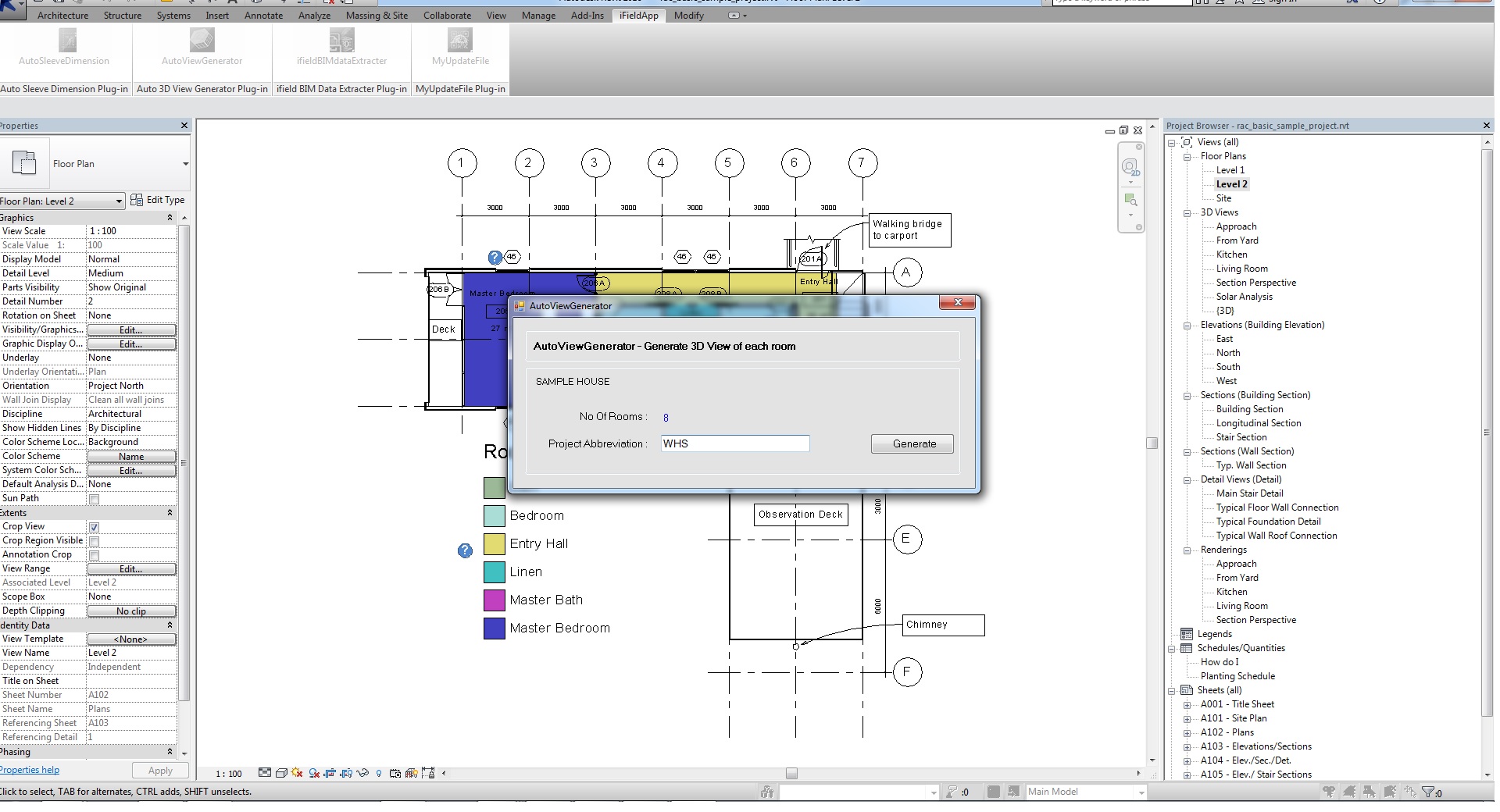
AutoViewGenerator discovers all available roomtags and generates 3D View for each room from the current view (floor). The user need to provide one input 'Project Abbreviation' in order to generate desired 3D View of each room.
To use this plugin, you must be logged in to your Autodesk account to use this plugin .
You can find the Plugin in Autodesk® Revit® "iFieldApp-> AutoViewGenerator (AVG)”
Сведения об этой версии
Версия 1.0.0.2, 28.04.2021
                                1) Add support for Revit 2022
                             
                         
                         
				         
                         
        
Great app that simplifies the isolation of individual rooms from a model. Extremely helpful in case of large models and multiple teams working on the same model.
Simplified the process a great deal!