
4D BIM
Описание
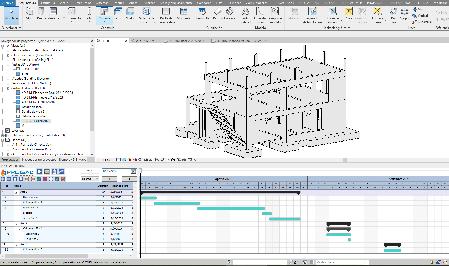
Simulate the work schedule of your project (4D) in Autodesk® Revit®. Now you can create a S-Curve graphic of your project.
Also you will be able to save drafting views with you Gantt graphic.
Export your 4D programming from Autodesk® Navisworks® or create it in Revit from scratch
-Added function to EXPORT video from Gantt Simulation. Only simulation or complete.
-Added CALENDAR type of view
-Added manual simulation of the construction process.
Option 1:
In any Navisworks project, define your Planning 4D. Now you can export the 4D schedule of your project from Navisworks to Revit and view the execution of your project in your source BIM model:
Step 1: Export the information from Navisworks.
Step 2: From Revit load the information to your project.
Step 3: Simulate the schedule of your project and visualize the items in the form of a table and Gantt chart (4D)
Option 2:
In any Revit project, define your Planning 4D from scratch:
Step 1: Create your tasks in Revit and assign the elements of your project. Define dates and hierarchies.
Step 2: Simulate the schedule of your project and visualize the items in the form of a table and Gantt chart (4D)
Recomiendo esta app para el control y desarrollo de proyecto, Sincronizándola en la nube para el cliente le permite hacer una mejor toma de decision.