
Legend Generator


Digitally signed app
Описание
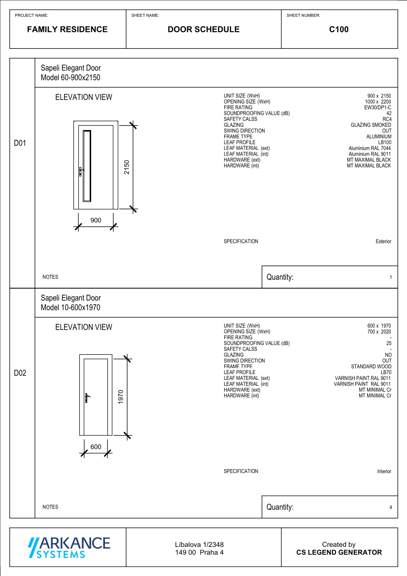
Legend Generator is an Autodesk® Revit® plugin made for the automatic creation of window and door schedules with element elevation views.
Schedules can be created with just a few mouse clicks and include name or type, element elevation view, selected parameters and element count.
The output can be easily adjusted to each company’s needs because it is created using standard Revit families.
Scheduled parameters automatically respond to changes in the project.
New elements or changes in element count in projects can be easily updated in schedules too.
The application uses an assembly creation strategy for placing element elevation views on schedules which ensures, that all elements are displayed properly. This includes elements whose geometry is driven by instance parameters. The output sheet size of the application is limited to A4 size sheets.
Purchase options:
For the full commercial version contact ARKANCE.
Note: This app uses a custom installer (and not the standard App Store installer).
Описание пробной версии
The trial period is limited to 15 days and has no limitations on the app's functionality.
To Activate the Trial:
- A dialog box appears upon clicking the app within Revit.
- Click on "Web Licence"
- Next, select the "Start Trial Version" (Login id and the password will be shared to the given mail-id)
- Click on "Connect account" and then "Web Licence" again
- Enter the Credentials and hit the "connect" button.
- Your Trial will be activated and you can close the Licensor window with the "Quit" button.
The splash windows doesn´t show the "Web Licence" to active the trial mode.
Thanks, the Trial instructions have been updated.
Very useful tool for generation of visual legends/reports. Saves lot of time.
Hi, pricing is available at Arkance Systems eShop: https://shop.arkance-systems.cz/en/product/cs-legend-generator-310393.html Tom