
Atkore BIM Toolbar


Digitally signed app
Описание
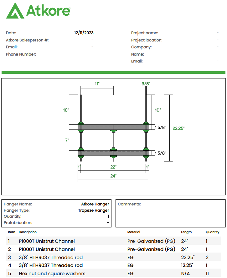
The Atkore BIM Toolbar is an Autodesk® Revit® plugin that provides access to the BIM library of Atkore’s full suite of electrical products, including strut, conduit, fittings, cable cleats, cable tray, bollards, and more. Along with this library of products, the toolbar incorporates a variety of features that reduce modeling time and increase design efficiency and productivity such as the Hanger Configurator which allows custom configuration & auto placement of Trapeze hangers and Fiberglass Grid Hangers.
Features also include: Coupling Placement, BOM Export, My Library (add your local families to the dockable panel), Reference Documents (right click on the family to get direct access to cut sheets and other related documents), Favorites Tab, Sync. Button to get the latest library updates, and more!
Don’t hesitate to email us: atkoretoolbar@atkore.com for any questions, requests, or demos.
Note: This app uses a custom installer (and not the standard App Store installer).
BIG A+ plugin, makes my work smooth and faster. Thanks for providing this toolbar. A lot of BIM MEP professionals will love this!
Thank you Atkore. This is exactly what i was looking for and your families are very well designed!
Thank you Christian! we are happy that you found what you were looking for in our toolbar and hope we continue to meet your expectations! please don't hesitate to contact us anytime at atkoretoolbar@atkore.com if you have any questions, requests or suggestions!
Error writing to file: C: ...\Atkore.lJpdate.UI.dll. Verify that you have access to that directory, Previous Atkore BIM Toolbar version may have been installed with higher privileges.
I got the same error.
same issues
Thank you for reporting this issue and apologies for the inconvenience, Please follow the steps below to install the latest version of the Atkore BIM Toolbar: 1. Remove the previous version of the Atkore toolbar by navigating to the Control Panel, selecting “Uninstall a program”, and then choosing the Atkore toolbar from the list of installed programs. 2. If the issue persists, delete the following directory: C:\\ProgramData\\Autodesk\\ApplicationPlugins\\AtkoreToolbar.bundle Note: you may need a permission from your IT department to complete the steps above. We promise a smoother installation process moving forward (after this version 2.6.1). Please don’t hesitate to reach out to us at atkoretoolbar@atkore.com if you have any questions or feedback.
This toolbar has made it very easy to integrate into our workflow for strut design/creation! The accuracy and ease of operation help get you up and running very quickly. They have been very helpful in also creating families upon request and being available for meetings to discuss use of and better ways to improve. This type of customer service and quality is essential for these fast paced environments. Thank you Aya & the Atkore Team!
Thank you Jacob, hope we continue to meet your expectations!
Very handy tool that speeds up my projects.
Thank you Cor!
This is a much needed plugin and the team behind it has been extremely responsive to any questions or requests we have had.
The team behind the Atkore BIM Toolbar is very plugged in to the industry and really take a true care and interest in our (the users) experience with the Toolbar and are very helpgul. Addiitonally, they are consistently working on ways to improve the capabilities of the toolbar while also expanding and/or improving the library of families within the toolbar as well. The customer service for the toolbar is excellent and the toolbar itself is easy to navigate, explore, and utilize in daily projects. As it stands now, the toolbar provides massive value in time savings and increasing efficiency, allowing BIM Coordinators, Designers, and Techs to quickly implement and continue with needed designs. However, as great as it is, the Atkore BIM Toolbar team continues to impress and elevate the experience with each new update.
the best
CAN YOU USE THIS IN ANY WAY IN CADWORX STEEL?
Thank you Andrea, this plugin only works for Revit, however, we do have other resources for Unistrut in cad, please contact atkoretoolbar@toolbar.com and we will schedule a call with you to hear your thoughts, share our resources and discuss how we can support you.
Quick update on the contact email for Unistrut resources - atkoretoolbar@atkore.com Thank you!
First off ,amazing job to the Atkore team for developing this add-in for us. From detailing to design, Strut to hardware, they have us covered.The families are quality,dimensionally correct and place accurate.The toolbar itself is well designed and layed out with easy access tabs. This is also managed content so Atkore quickly responds to any issues or ideas. Need a custom trapeze hanger ? You got it using the hanger configurator. Best part... It continues to evolve and provide us a truly must have tool bar. Thanks for supporting us Atkore !
Jeff, how did you activate the software through Revit? I can't seem to figure out how to submit my info once I fill out the fields. Any insight into this is appreciated. Thanks for your help.
The Atkore Revit addin has been very handy. We build a lot of skids and being able to grab any of the Atkore RFAs to build them out is extremely helpful. I love that I can star the families that I use on a regular basis to make it even easier to grab and go. As things are moving towards more modularization and skidded packages in the MEP world we are using more and more strut to accomplish those tasks.
I am looking forward to see the continued development of the hanger configurator too!
Appreciate that Atkore actually listens to feedback on the toolbar and works on any features that are missing. Very few companies actually seem to listen to customer feedback, so hats off to Atkore for taking the time to work to make the toolbar better and easier to use in each release.
If you use Unistrut supports you need to use this.
The develpment team working on the Atkore Toolbar is top notch and really listens to the end user to develpo a supertior tool. This is very powerful and useful as an add-in for Revit or the web application and continues to develop further. I highly reccomend you add it to your arsenal.