MEP Utilities: Item Selection Tool 2021

MEP Utilities: Item Selection Tool 2021

月, 年, 30 天免费试用版
操作系统:
语言:

描述

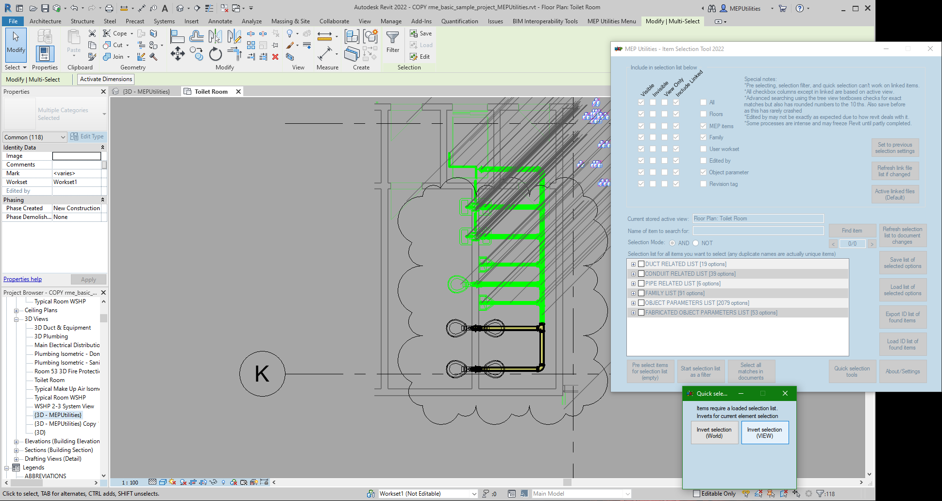
Autodesk® Revit® add-in tool that gives advanced and fast select methods for project elements allowing for better manipulation and collecting. By improving the process of finding and selecting elements time can be saved scrolling around projects, subsets of items can be better managed, and the use of exporting and loading element lists can allow faster references of previous work areas.

 

Prerequisite: This program will require MEP CORE 2021 installed to run. This program is available on the Autodesk app store where it is most up to date "https://apps.autodesk.com/RVT/en/Detail/Index?id=2169914047869269594&appLang=en&os=Win64" but is also included in this installer up to the version it requires.

 

Note: This app uses a custom installer (and not the standard App Store installer).

关于此版本

版本 0.9.2, 2023/5/31
Minor update tweaks. Additional features to be added in the upcoming updates/releases.


屏幕截图和视频


客户评论

0 评论
获取技术帮助
回到页首