Department area calculator - 2022

Department area calculator - 2022

免费
操作系统:
语言:

描述

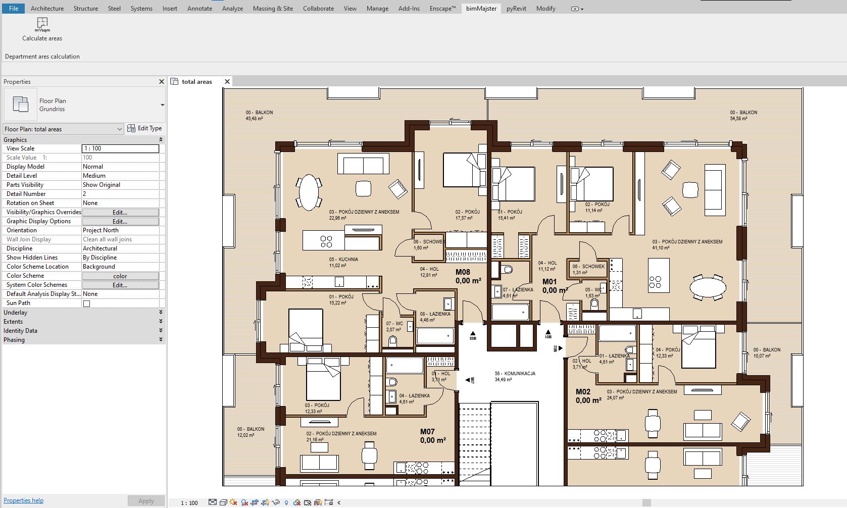
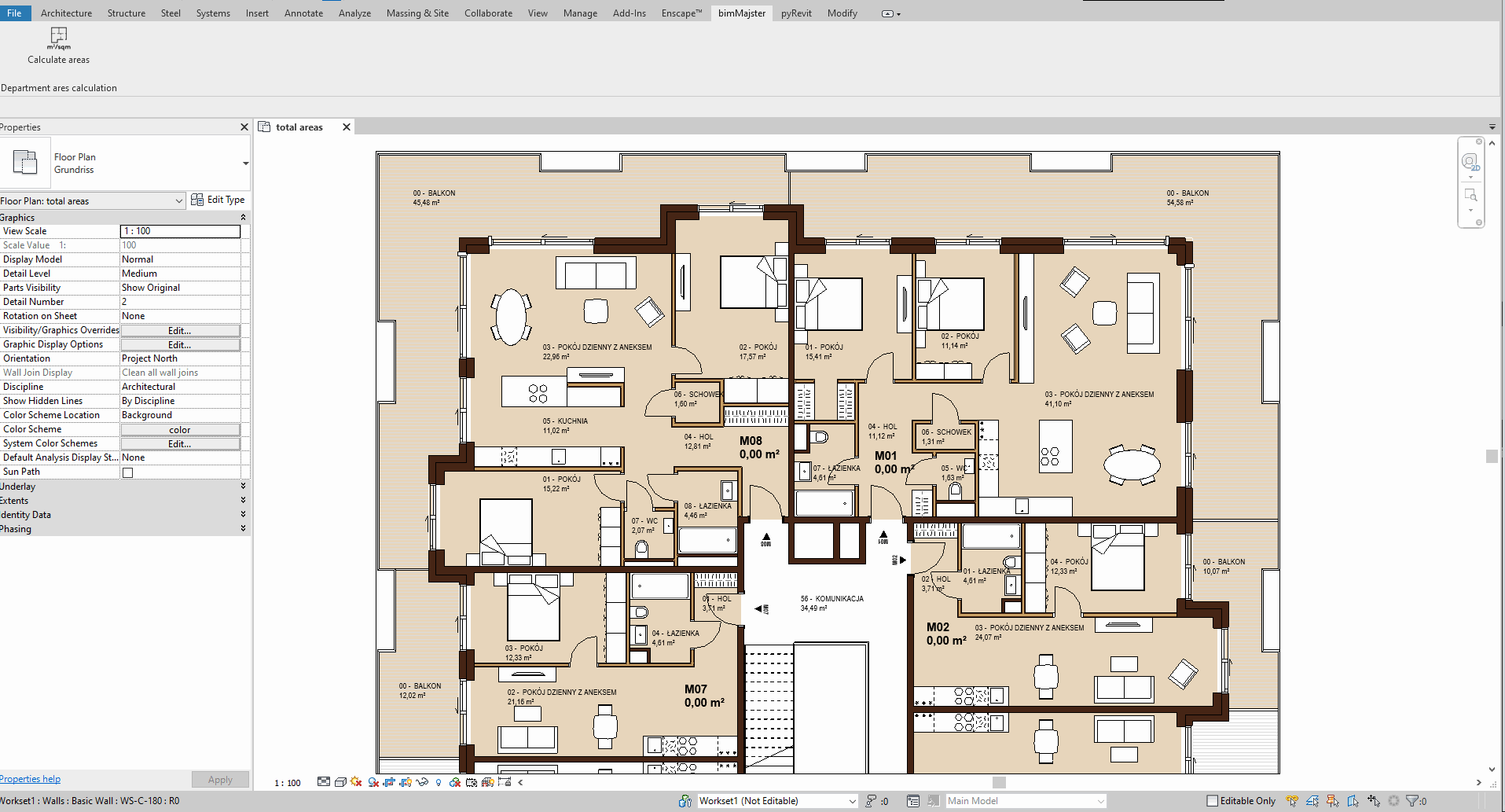
This app allows the summarizing of areas for rooms that belong to one department. The summed area is then written back to rooms into the desired parameter. Because of this, it is possible to show in plans the areas of departments with standard Autodesk® Revit® tags. Values are updated when the script is restarted. Rooms are grouped by the same values of the desired parameter.

In case you are interested in extending or customizing this workflow please contact us using our customer support email address.

关于此版本

版本 1.0.1, 2022/5/20
Initial release for Autodesk® Revit® 2022


屏幕截图和视频


客户评论

0 评论
获取技术帮助
回到页首