Système d'exploitation:
Langue:

Description

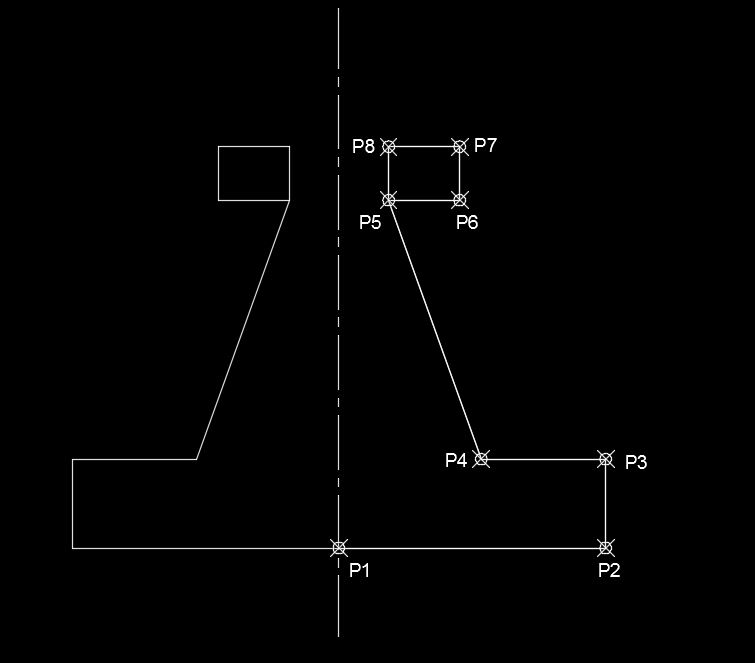
Using this Add-in, the user can create symmetrical lines based on a mirror line.

 

The continuous lines drawn in the Autodesk® AutoCAD® drawing will be automatically mirrored based on the selected mirror line.

 

The App has option to automatically close the continuous line loop when exiting the command and also has option to undo the last line.

A propos de cette version

Version 1.4, 20/09/2022
Autodesk® AutoCAD® 2019 to 2023 Versions are supported.


Captures d'écran et vidéos


Avis des clients

1 avis
Obtenir une aide technique
  • Useful Tool
    Cretu Alifantis | septembre 11, 2015 Téléchargement vérifié (Qu'est-ce que c'est?)

    Thank you so much for sharing free. Works perfectly. Best regards, C. Alifantis

Haut