Sistema operacional:
Idioma:

Descrição

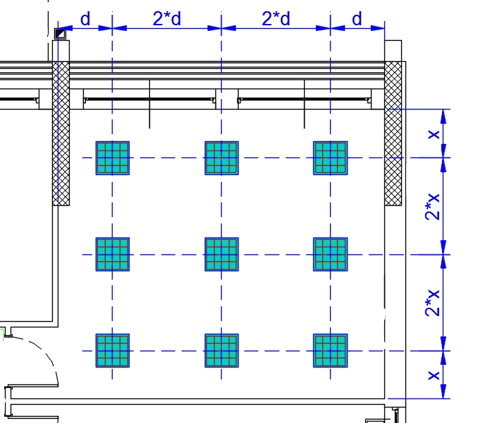
Light Distribution distributes the blocks of lighting fixtures or other ceiling-mounted appliances in a room according to the rule that: the distance between the elements is twice the distance between the elements and the walls of the room.

the program requires:

  • the number of lamps or elements to be placed
  • defining the perimeter of the room (specifying 2 or 3 vertices)
  • the name of the block to insert to represent the lamp or element

With these inputs, the program - automatically - arranges the elements according to an optimal scheme.

By pressing the TAB key you can change the distribution scheme until you find the one that best suits the type of room.

A further tool to improve the arrangement of the lamps is the possibility of rotating them cyclically - by pressing the R key - around their insertion point.

The layout scheme change and rotation are all done interactively, so the designer can quickly view all the possible layouts applicable to that room with that number of elements.

The program also manages the distribution of elements in rooms that are not orthogonal to the drawing axes.

Light Distribution can also arrange the elements along a path or object that represents it (Polyline, Line, Arc, Circle, and Ellipse).

If the objects are closed (Circle, Ellipse, and Polyline) the blocks are arranged equidistant from each other without applying the rule described above.

It is also possible to configure the program (use icon with the 2 small wheels at the top right) so that it imposes a scale factor on the inserted blocks.

Sobre esta versão

Versão 1.0.0, 26/03/2026
Add 2027 support (no change in version number)


Capturas de tela e vídeos


Comentários dos clientes

2 revisões
Obter ajuda técnica
  • Спасибо? Работает.
    Abzal Sul | fevereiro 25, 2023 Download confirmado (O que é isto?)

    Надо зайти через аккаунт Автодеска в приложении Автокад на значке тележки. Иначе пишет что лицензия не активна


  • Taras
    Taras Zelensky | janeiro 14, 2021

    Similar program - https://apps.autodesk.com/ACAD_E/en/Detail/Index?id=5160923965188519124&;appLang=en&os=Win32_64&mode=preview&autostart=True&loginRequired=True

Ir para o início