
Schemator
Gratuit
Système d'exploitation:
Langue:
Description
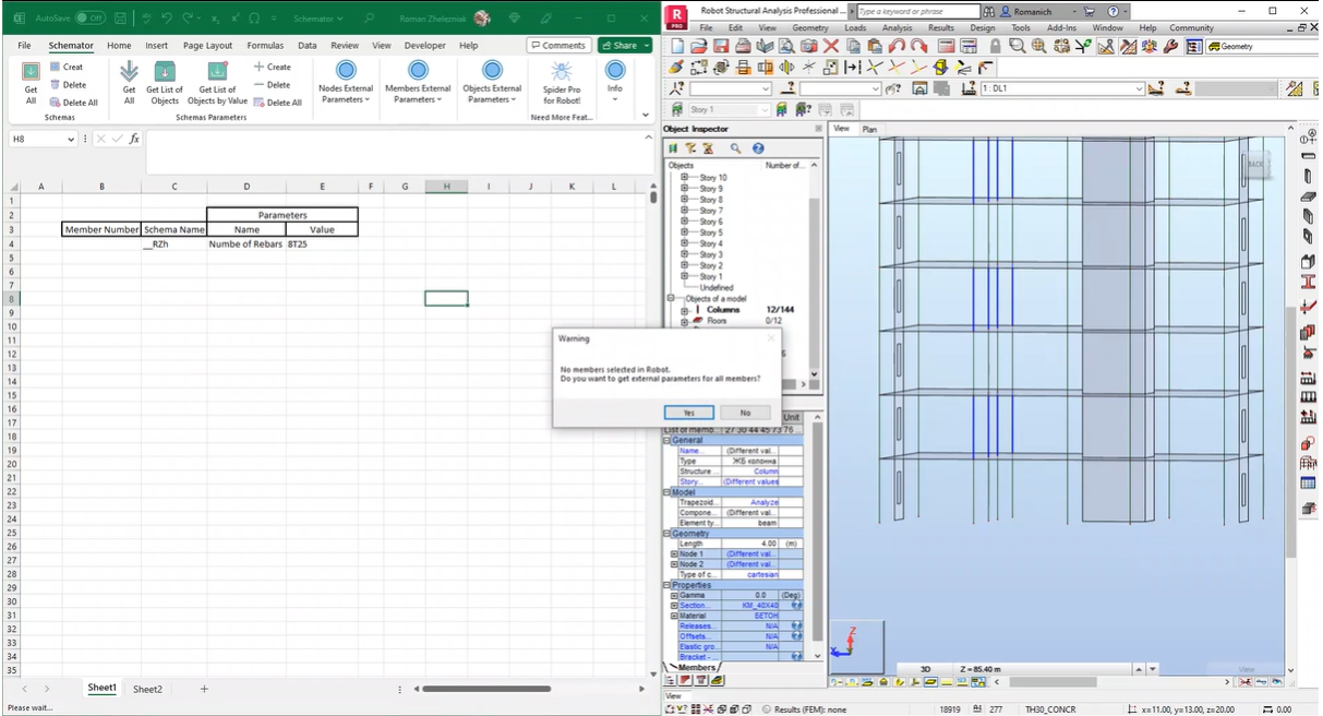
This Schemator is developed to extend the operability of the Autodesk® Robot Structural Analysis™ Professional by adding custom user parameters (known as External Parameters) to the model. The user interface of the Schemator is organized in logical order – the first step is to define a schema, then define and add parameters to the schema and the last step is to assign parameters to nodes, members, or objects in the model.
All added schemas and external parameters should be visible in the GUI in the future. However, this functionality is not yet activated/implemented by Autodesk. At the moment the API is only the way to work with external parameters.
Note: This app uses a custom installer (and not the standard App Store installer).
A propos de cette version
Version 1.0.0, 08/04/2025
Initial release