Clash Manager
Gratuit
Système d'exploitation:
Langue:

Description

Main Features:

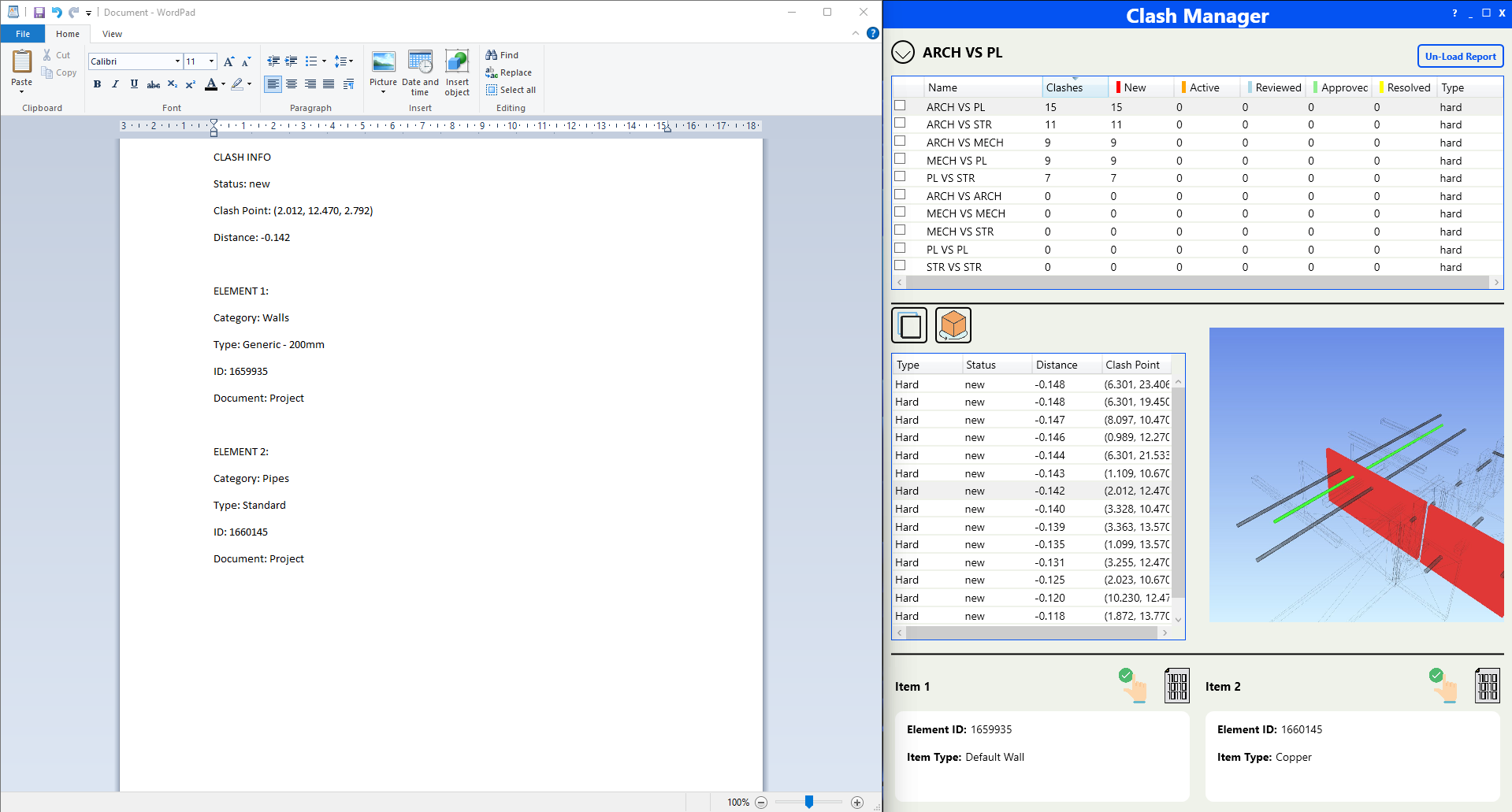
  • View clash reports generated by Autodesk® Navisworks® directly within the Autodesk® Revit® interface.
  • Navigate through and inspect clashes inside the Revit UI.
  • Select and highlight clash elements with ease.
  • Focus on and isolate clash components in any Revit view.
  • Generate a custom-sized 3D section box centred on the clash location.
  • Show or hide clash images captured in Navisworks
  • Track and manage the status of each clash result.
  • View summary statistics for all detected clashes.

A propos de cette version

Version 1.0.0, 28/10/2025
Start-up Features Quickly access essential tools to: Select and add elements Copy element details, including Element IDs View associated Navisworks clash images Copy clash information for documentation or coordination


Captures d'écran et vidéos


Avis des clients

4 avis
Obtenir une aide technique
  • Perfect tool for Resolving clashes
    Neha Hiware | mars 17, 2026 Téléchargement vérifié (Qu'est-ce que c'est?)

    Very useful, Saved a lot of time


  • Great
    Mohamed Salah | janvier 26, 2026 Téléchargement vérifié (Qu'est-ce que c'est?)

    Great effort, it really upgrades the coordination proccess but pls can u add a new feature to update the navisworks file clash tests with the clash status as indicated in revit after reviewing it

    Mohamed Afia (Editeur) | janvier 28, 2026

    Thanks for your feedback. May you specify the workflow you want to add exactly?


  • Good For Coordination
    Mazen Megahed | novembre 09, 2025 Téléchargement vérifié (Qu'est-ce que c'est?)

    it saves not less than 40mins from my coordination day


  • Amazing Tool!
    Mohamed Hassen | octobre 30, 2025 Téléchargement vérifié (Qu'est-ce que c'est?)

     

    The tool has significantly improved my coordination process.

     
     

Haut